
1 home available
800 Cortelyou Road # 3E, Brooklyn, NY 11218
NEW 4 hrs ago

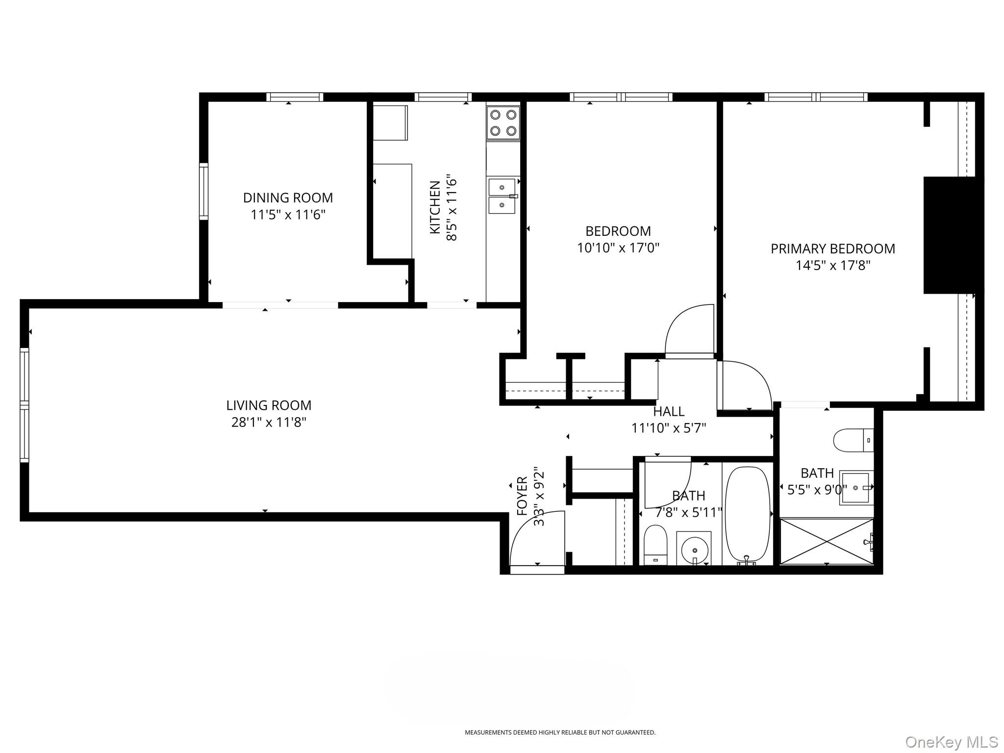
$949,000
3beds
2bath
1,300sqft
–acres
Co-op for Sale
800 Cortelyou Road # 3E, Brooklyn, NY 11218
Listing by: Lifcha Zweig
1 - 1 of 1 results

NYS Fair Housing NoticeNYS Reasonable Accommodation & Modification NoticePrivacy PolicyTerms of UseADADMCAReal Estate SitemapReal Estate Agent & Office Directory
400 Broadhollow Road, Suite 5, Farmingdale, NY 11735
Copyright © 2026 OneKey® MLS LLC
Display of MLS Data is usually deemed reliable but is NOT guaranteed accurate by the MLS. Buyers are responsible for verifying the accuracy of all information and should investigate the data themselves or retain appropriate professionals.












