
- Buy
- Rent
- Commercial
- Find an Agent
- NYS Fair Housing Notice
- Language
4530 Merrick Road, Massapequa, NY 11758







































































NY/Nassau County/Massapequa/11758/4530 Merrick Road, Massapequa, NY 117584530 Merrick Road, Massapequa, NY 11758
4530 Merrick Road, Massapequa, NY 11758
City/Town:Massapequa Post Office: Massapequa
House for Sale by Elaine Patterson SRES, Signature Premier Properties.
- Overview
- Details
- Open Houses
- More
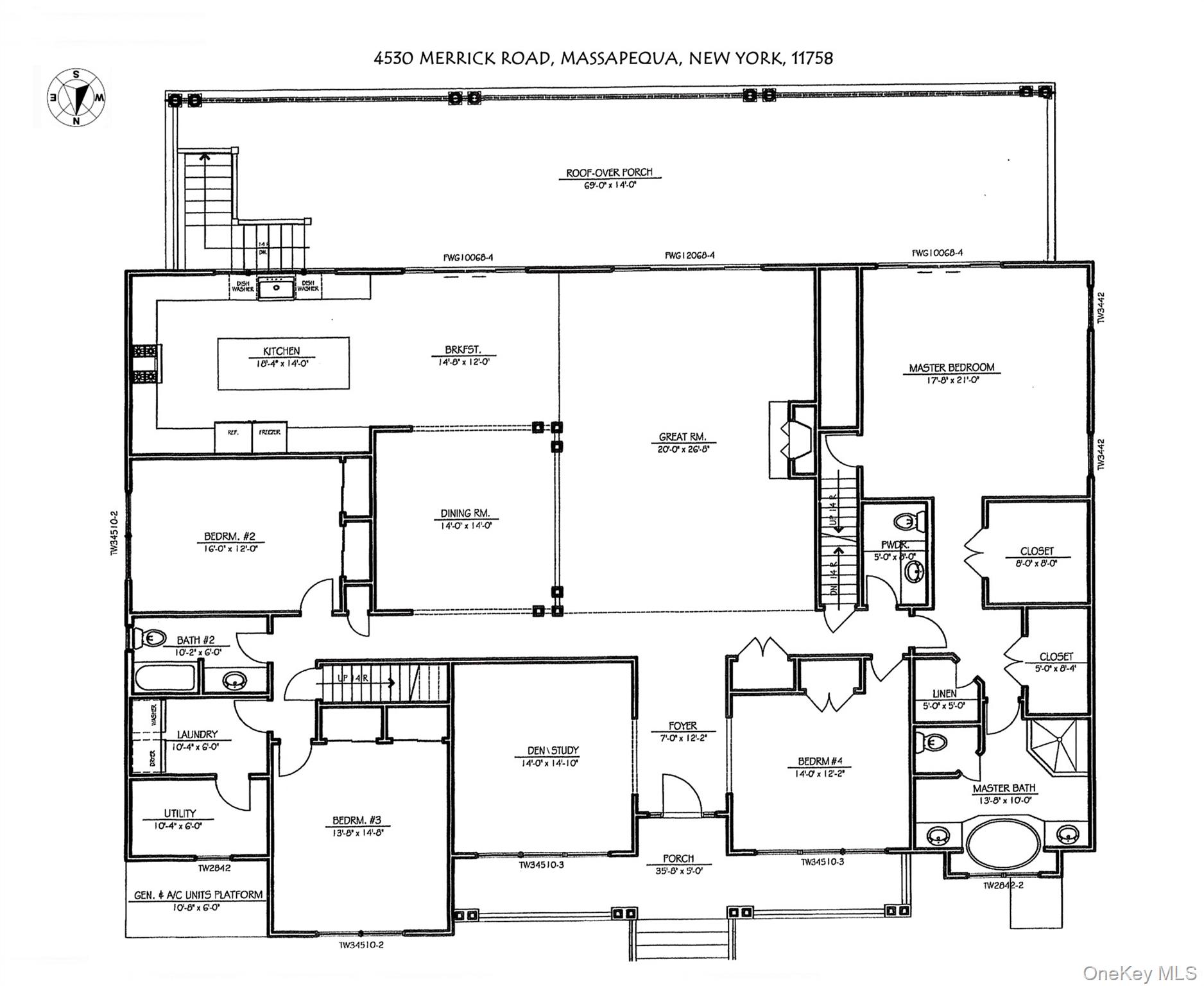
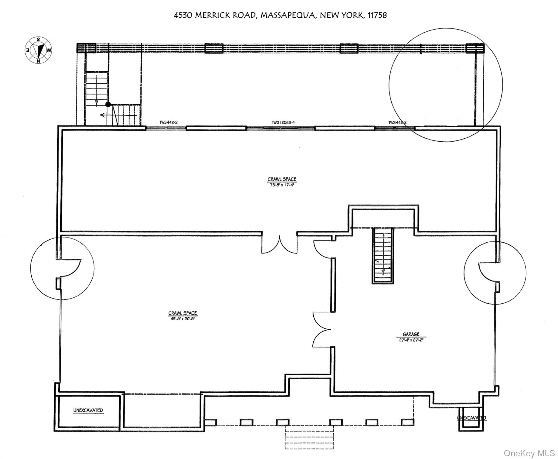
Biltmore Shores | Waterfront New Construction Opportunity | Being Sold As-Is / Partially Completed Discover a rare and expansive .55 acre waterfront offering in the desirable Biltmore Shores community. Located at 4530 Merrick Rd on the Grand Lagoon, this Sprawling Ranch boasts approximately 3500SF is custom-designed, with a 14.1’ elevation and FEMA Compliant. It presents a unique opportunity for a buyer to complete construction to their own specifications. The current build features a town approved, planned layout including: 9-foot ceiling height, hi-hats, 200-amp electric service, four/five bedrooms, three full bathrooms, an 18'x14' eat-in kitchen open to a 15'x12' breakfast room with 12' sliders to a 72'x14' covered rear deck, a 20'x27' great room, 14'x14' dining room, and a 14'x14' den/study. The primary suite layout provides for an 17’8”x21' bedroom with a 14'x10' luxury bath, three walk-in closets, with private deck access to maximize waterfront views. The existing three bedrooms offer six foot closet space and measure 16’x12’, 13’8”x14’8”, and 14’x12’2” in size. See attached floor plan and other attachments. The full third level/Loft/Attic—approximately 2582sf offers significant future expansion potential, suitable for recreation, studio, office, or multigenerational living space. The lower grade level at approximately 3500SF includes a 2-car garage with an extended crawl-space workshop designed for 6-8+ additional vehicles, potentially indoor-outdoor dining area with an additional 72x14 covered patio all leading out to the 140' bulkhead and a 26'x54' boathouse that brings the total bulkhead to 238’. All over-looking Massapequa Lake and the Grand Lagoon. The lagoon features approximately 20' depth at center with direct boating access to the Grand Canal and the Great South Bay, placing Fire Island and Robert Moses just minutes away by water. IMPORTANT: This property is being sold in as-is, partially constructed condition. The Buyer is responsible for all costs to complete construction. Plans, permits, surveys, and existing materials on-site will be included in the sale where applicable. Live the sought-after Biltmore lifestyle, with membership eligibility to the private Biltmore Beach Club (pool, marina, courts, seasonal events), proximity to the Massapequa Preserve, Massapequa School District, Local dining favorites, and Easy commuter access to NYC and the Hamptons. A truly rare and customizable waterfront estate opportunity!