
1 home available
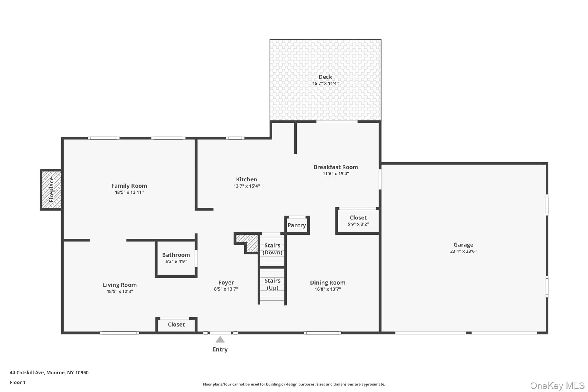
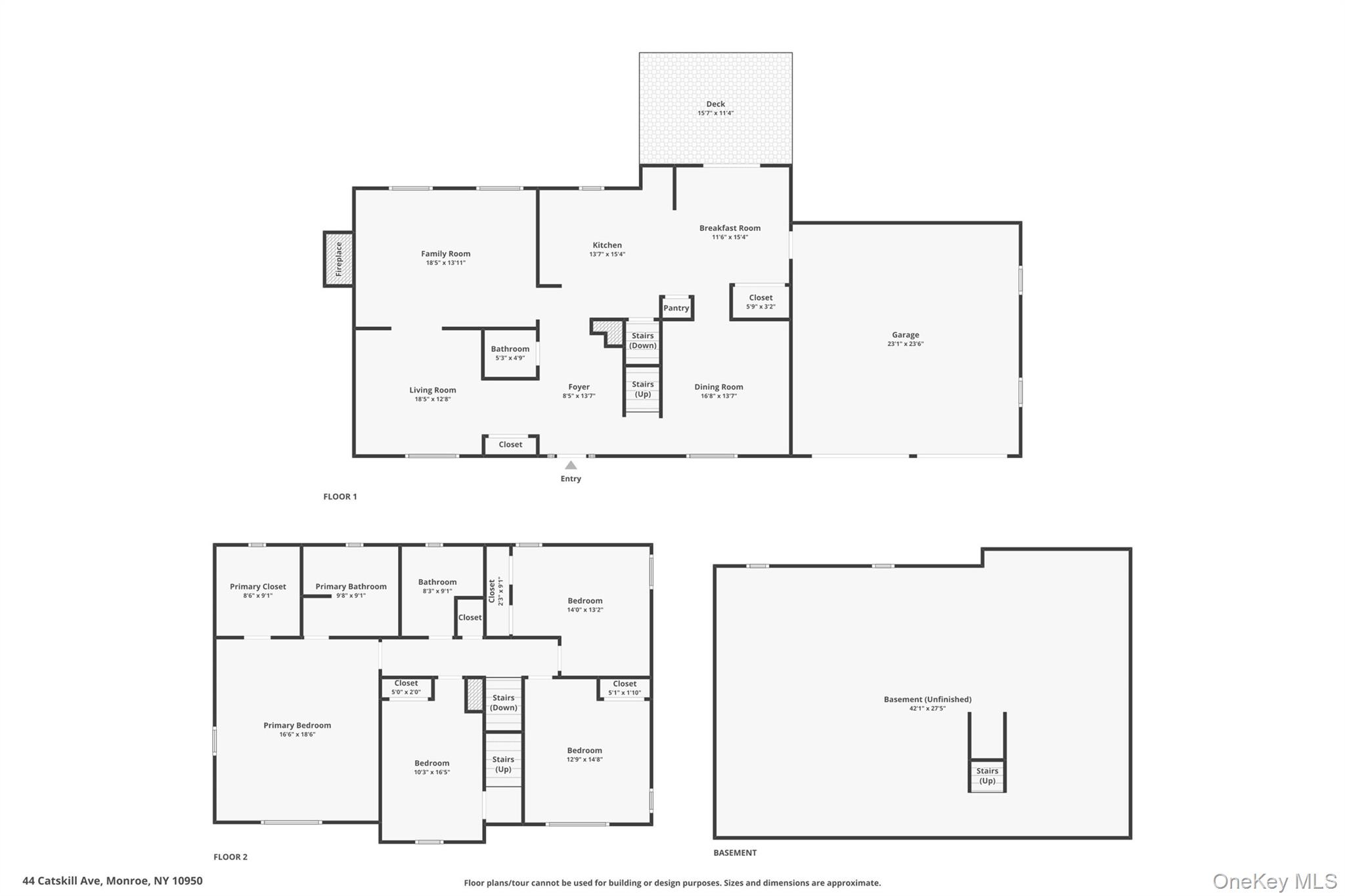
44 Catskill Avenue, Monroe, NY 10950
Down Payment Help
NEW 4 days agoVirtual Tour
$650,000
4beds
2.5bath
2,518sqft
1acres
House for Sale
44 Catskill Avenue, Monroe, NY 10950
Listing by: Howard Hanna Rand Realty
1 - 1 of 1 results

NYS Fair Housing NoticeNYS Reasonable Accommodation & Modification NoticePrivacy PolicyTerms of UseADADMCAReal Estate SitemapReal Estate Agent & Office Directory
400 Broadhollow Road, Suite 5, Farmingdale, NY 11735
Copyright © 2025 OneKey® MLS LLC
Display of MLS Data is usually deemed reliable but is NOT guaranteed accurate by the MLS. Buyers are responsible for verifying the accuracy of all information and should investigate the data themselves or retain appropriate professionals.






