
1 home available
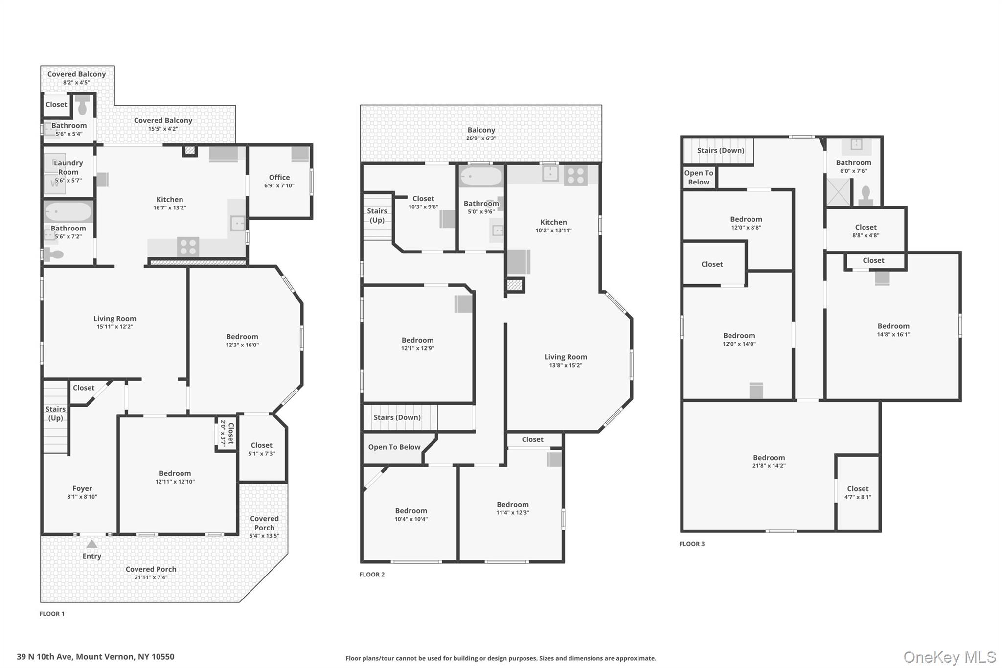
39 N 10th Avenue, Mount Vernon, NY 10550
NEW 3 hrs agoVirtual Tour

$999,000
8beds
3bath
–sqft
0.11acres
Residential Income
39 N 10th Avenue, Mount Vernon, NY 10550
Listing by: Christie's Int. Real Estate
1 - 1 of 1 results

NYS Fair Housing NoticeNYS Reasonable Accommodation & Modification NoticePrivacy PolicyTerms of UseADADMCAReal Estate SitemapReal Estate Agent & Office Directory
400 Broadhollow Road, Suite 5, Farmingdale, NY 11735
Copyright © 2026 OneKey® MLS LLC
Display of MLS Data is usually deemed reliable but is NOT guaranteed accurate by the MLS. Buyers are responsible for verifying the accuracy of all information and should investigate the data themselves or retain appropriate professionals.



































