
1 home available
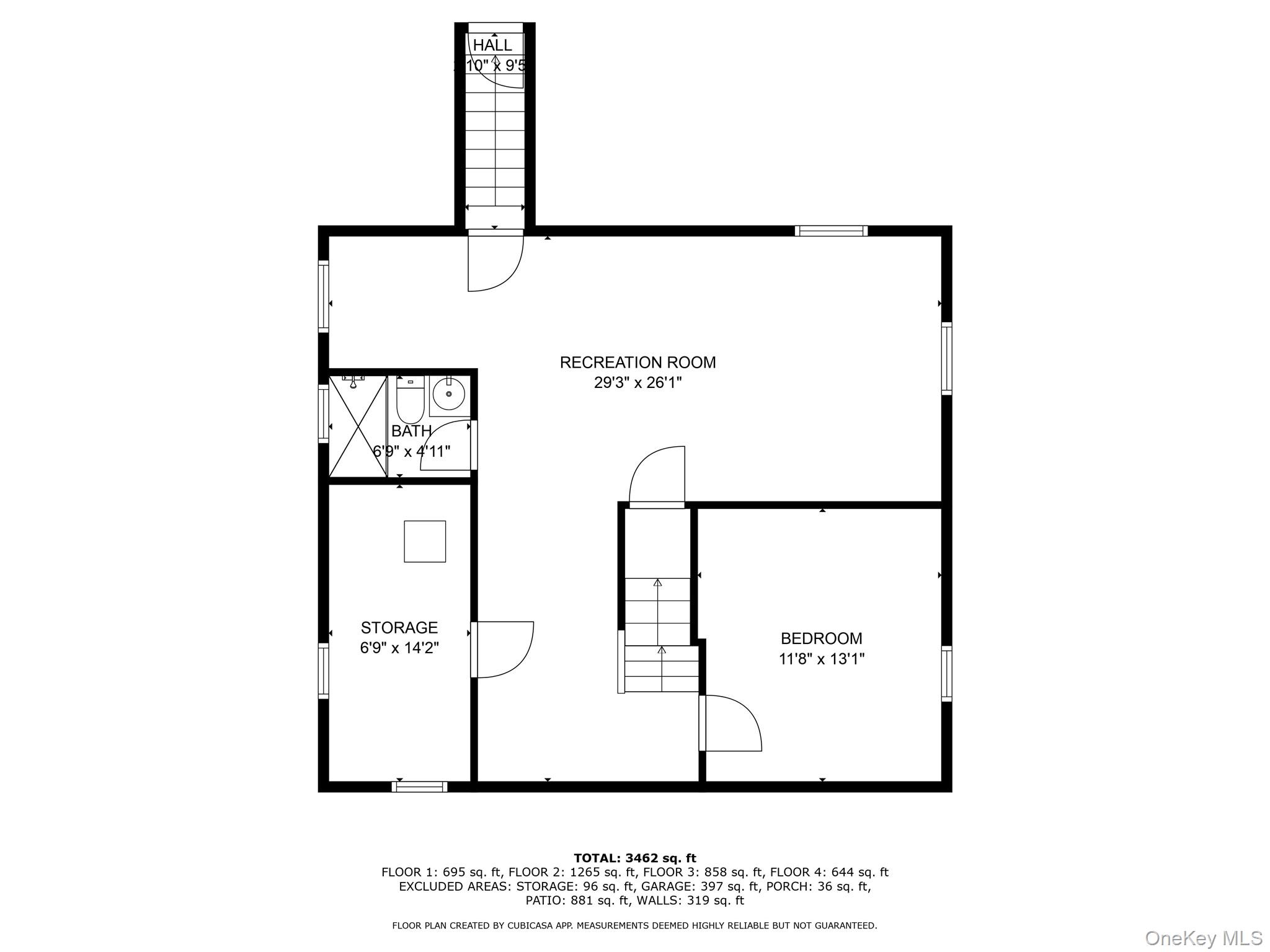
353 Rich Avenue, Mount Vernon, NY 10552
Down Payment Help
PendingVirtual Tour
$975,000
6beds
4.5bath
4,000sqft
0.11acres
House for Sale
353 Rich Avenue, Mount Vernon, NY 10552
Listing by: RE/MAX Prestige Properties
1 - 1 of 1 results

NYS Fair Housing NoticeNYS Reasonable Accommodation & Modification NoticePrivacy PolicyTerms of UseADADMCAReal Estate SitemapReal Estate Agent & Office Directory
400 Broadhollow Road, Suite 5, Farmingdale, NY 11735
Copyright © 2025 OneKey® MLS LLC
Display of MLS Data is usually deemed reliable but is NOT guaranteed accurate by the MLS. Buyers are responsible for verifying the accuracy of all information and should investigate the data themselves or retain appropriate professionals.






