
- Buy
- Rent
- Commercial
- Find an Agent
- NYS Fair Housing Notice
- Language
167 New Concord Road, Chatham, NY 12060







































































NY/Columbia County/Chatham/12060/167 New Concord Road, Chatham, NY 12060167 New Concord Road, Chatham, NY 12060
167 New Concord Road, Chatham, NY 12060
City/Town:Chatham Post Office: Chatham
House for Sale by Joseph L. Briggs, William Pitt Sothebys Int Rlty.
- Overview
- Details
- Open Houses
- More
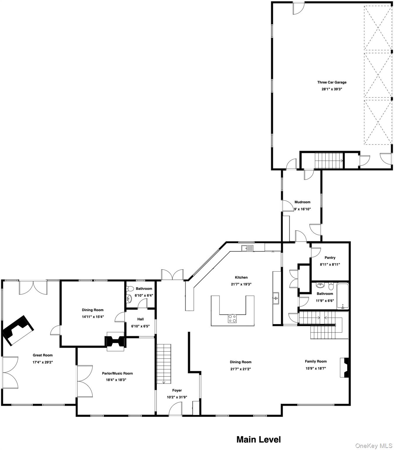
Perched High on a Hill, A Modern Sanctuary of Timeless Elegance. Set atop 74 acres of extraordinary privacy in the historic hamlet of New Concord, this refined center hall colonial commands sweeping views of rolling meadows, wooded trails, hay fields, and distant Catskill horizons. Bathed in sunlight throughout the day, the property offers a rare sense of peace and expansiveness, where nature, light, and craftsmanship exist in harmony. Custom-built to evoke the grace and authenticity of a 200-year-old estate, the home blends timeless architectural detail with thoughtful modern luxury. The interior unfolds with a balance of openness and intimacy, offering spaces that feel both grand and warmly livable. At the heart of the home is an expansive chef’s kitchen featuring honed Vermont Danby marble countertops, Kennebec cabinetry, a spacious pantry, and top-tier appliances, including a grand-scale luxury Thermador refrigerator and plumbed Wolf steam convection oven. The kitchen flows seamlessly into an oversized casual dining area and family room, ideal for relaxed daily living and entertaining. More formal rooms include a gracious dining room, refined reception or music room, and a light-filled sunroom with fireplace. Radiant in-floor heat warms the office, kitchen and mudroom, living room and entry, and dining and music rooms, while the sunroom is served by baseboard hot water and the upper level is divided into two zones for comfort and efficiency. Nordic matte white-washed reclaimed Southern pine floors, artisan-crafted twelve-over-twelve windows, and hand-forged wrought-iron hardware lend warmth and authenticity. Five wood-burning fireplaces, including two moss-lined stone fireplaces, add character and comfort, while limestone bath tiles and a spa-like primary bath elevate everyday living. The home is fully networked with Ethernet and Wi-Fi throughout and includes multiple office spaces, abundant storage, a private guest suite, and additional guest accommodations. The estate is exceptionally well equipped for both daily living and entertaining, with a professional six-burner Garland range with salamander, griddle, grill, and dual ovens, two Bosch dishwashers, Viking bar and wine refrigerators, and twin Sub-Zero refrigerators in the basement providing generous additional cold storage. A drop freezer, water softener, bar sink filtration, high-capacity range hood, Vermont Castings wood stove, and split system in the office enhance comfort and functionality. Outdoors, a newly constructed gunite pool by Scott Pools is surrounded by an expansive granite patio with upgraded coping that remains cool underfoot. The pool features dual heaters, swim shelf, swim-out step, discreet lap lane, and premium cover. In spring, the lawn will be refreshed and the pool area styled with elegant furnishings, oversized planters, and Tucci umbrellas. The land itself offers rolling fields, woodland trails, fruit trees, and a fenced apiary with mature beehives. With generous road frontage and multiple driveway access points, the property provides enhanced privacy and flexibility. Raised-bed vegetable and herb gardens near the kitchen reinforce a lifestyle rooted in beauty, sustainability, and abundance. Additional amenities include a twenty-four by twelve garden shed, Level Two EV charger, Goshen-stone patios and walkways, a CeDur roof, and buried 400-amp electrical service. Security and Nest systems with cameras are in place for peace of mind. Despite its serene setting, the property is conveniently located to Albany, Troy, Saratoga Springs, Hudson, Chatham, Rhinebeck, Lenox, and Stockbridge, offering access to dining, culture, boutiques, and year-round recreation. Whether hosting gatherings or savoring solitude amid open land and endless views, this exceptional estate offers a rare and deeply satisfying way of living.