
- Buy
- Rent
- Commercial
- Find an Agent
- NYS Fair Housing Notice
- Language

14 Harrigan Road, Hopewell Junction, NY 12533





























































































NY/Dutchess County/Hopewell Junction/12533/14 Harrigan Road, Hopewell Junction, NY 1253314 Harrigan Road, Hopewell Junction, NY 12533
14 Harrigan Road, Hopewell Junction, NY 12533
City/Town:Hopewell Junction Post Office: Hopewell Junction
House for Sale by Neeta Saraswat, Weichert Realtors.
- Overview
- Details
- Open Houses
- More
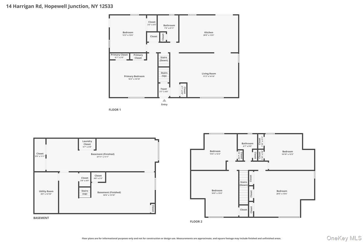
If you've been dreaming of wide-open spaces and fresh country air, 14 Harrigan might just be "the one". -it delivers both comfort and smart updates on over 10 scenic acres. This charming Country Cape offers the serene lifestyle you've been searching for. The bright and welcoming interior features an open Kitchen with a large Center Island, stone countertops, generous cabinetry- all flowing seamlessly into the Dining and Living areas with Brazilian Cherry flooring. The Main level includes a convenient first-floor Bedroom and Full Bath. The Home Office/Bedroom#2 complete the main living area. Ascend to the additional sleeping quarters to find two bedrooms, a full bath, plus a flexible bonus room, ideal for a second floor FamilyRoom/Music Room/Playroom /Sewing or Sitting Room/Guest Room. Garden level is a walk out, and recently renovated for additional storage or ready to be customized to fit your needs. Amenities include: Central Air-Conditioning on the upper level and Split A/C on the main for efficient climate control. Open your back door to your private oasis, as here is where the fun continues. A 20'x40' in-ground pool, and expansive deck offer the best enjoyment and entertainment pleasure, in a surrounding of mature trees, vegetable garden and fruit trees-open acreage ideal for enjoying the peaceful setting. A former Garage has been thoughtfully converted into functional and interior space, now serving as a Laundry and UtilityRoom with tons of storage adding flexibility and convenience. Long driveway provides ample parking for multiple vehicles. Additional big ticket items, giving peace of mind for the major systems: a Shed, Generator. New Well Pump. New Pool Filter. New Roof. And, Solar Panels help keep energy costs down! Bonus: Architectural plans for expansion or redesign included, because its always nice to have options fo the future. Located in an agricultural district, the property offers endless opportunities for gardening, raising animals or outdoor pursuits. Convenient location near town, restaurants, shopping and entertainment. Commuters will appreciate the proximity to all major highways for work or play. Your ideal home...offering privacy, space, and practical upgrades in one complete package for today's discerning buyers.