
1 home available
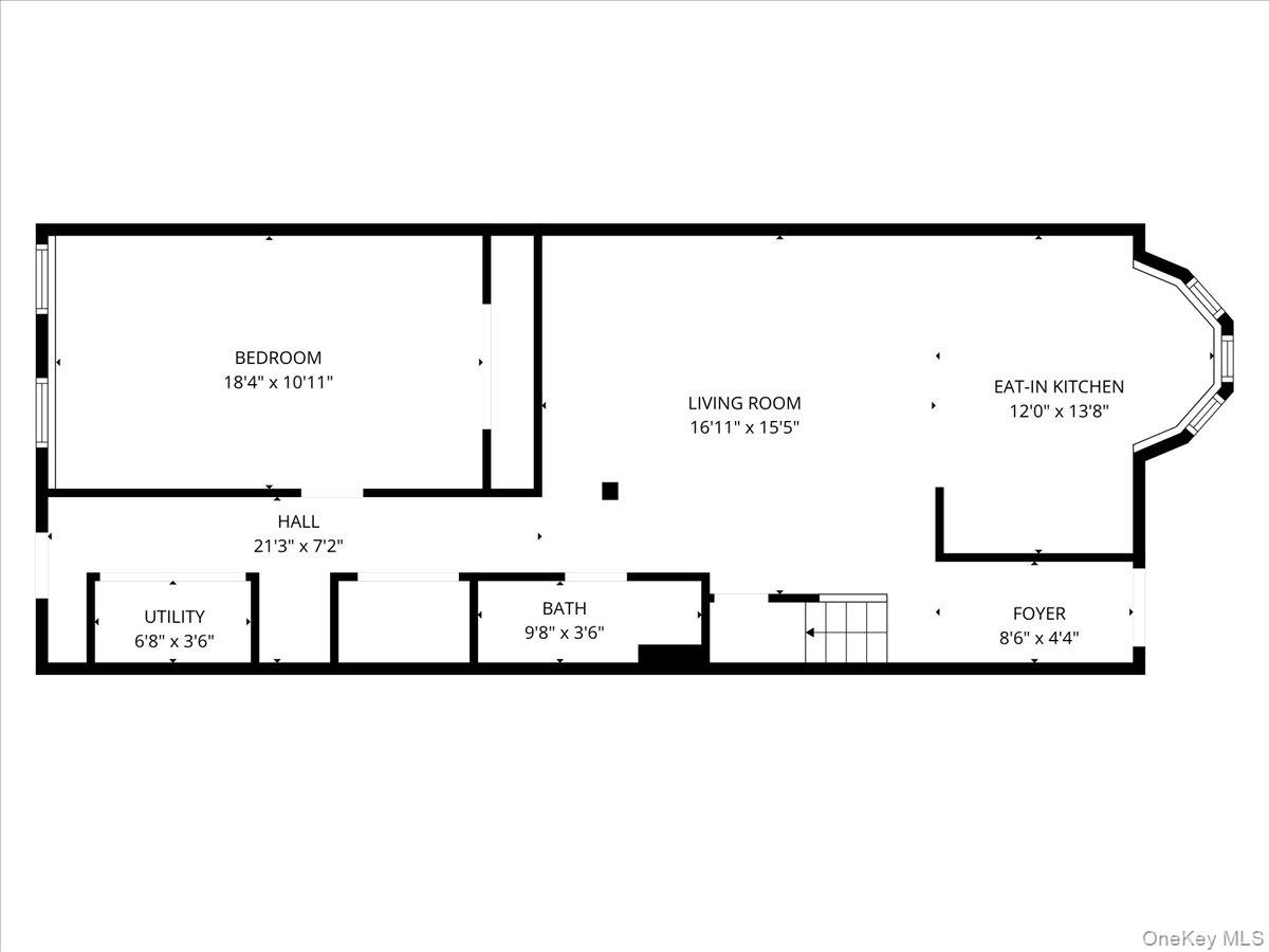
113 92nd Street, Brooklyn, NY 11209
Down Payment Help
PendingVirtual Tour

$1,388,888
7beds
3bath
–sqft
0.05acres
Residential Income
113 92nd Street, Brooklyn, NY 11209
Listing by: EXP Realty
1 - 1 of 1 results

NYS Fair Housing NoticeNYS Reasonable Accommodation & Modification NoticePrivacy PolicyTerms of UseADADMCAReal Estate SitemapReal Estate Agent & Office Directory
400 Broadhollow Road, Suite 5, Farmingdale, NY 11735
Copyright © 2026 OneKey® MLS LLC
Display of MLS Data is usually deemed reliable but is NOT guaranteed accurate by the MLS. Buyers are responsible for verifying the accuracy of all information and should investigate the data themselves or retain appropriate professionals.

























