
1 home available
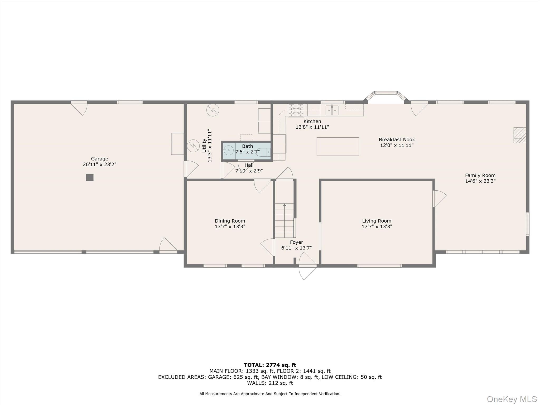
94 Lincolndale, Washingtonville, NY 10992
Down Payment Help
Pending
$549,000
4beds
2.5bath
2,774sqft
5.4acres
House for Sale
94 Lincolndale, Washingtonville, NY 10992
Listing by: Keller Williams Realty
1 - 1 of 1 results

NYS Fair Housing NoticeNYS Reasonable Accommodation & Modification NoticePrivacy PolicyTerms of UseADADMCAReal Estate SitemapReal Estate Agent & Office Directory
400 Broadhollow Road, Suite 5, Farmingdale, NY 11735
Copyright © 2025 OneKey® MLS LLC
Display of MLS Data is usually deemed reliable but is NOT guaranteed accurate by the MLS. Buyers are responsible for verifying the accuracy of all information and should investigate the data themselves or retain appropriate professionals.






