
1 home available
88-02 102nd Avenue, Ozone Park, NY 11416
Down Payment Help
PendingPrice Reduced $50,999
$1,249,000
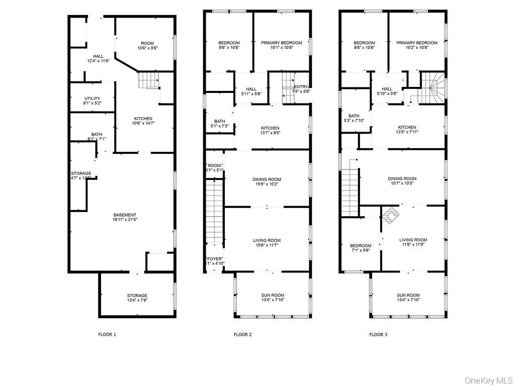
6beds
3bath
–sqft
–acres
Residential Income
88-02 102nd Avenue, Ozone Park, NY 11416
Listing by: Century 21 Amiable Rlty Grp II
1 - 1 of 1 results

NYS Fair Housing NoticeNYS Reasonable Accommodation & Modification NoticePrivacy PolicyTerms of UseADADMCAReal Estate SitemapReal Estate Agent & Office Directory
400 Broadhollow Road, Suite 5, Farmingdale, NY 11735
Copyright © 2026 OneKey® MLS LLC
Display of MLS Data is usually deemed reliable but is NOT guaranteed accurate by the MLS. Buyers are responsible for verifying the accuracy of all information and should investigate the data themselves or retain appropriate professionals.






