
1 home available
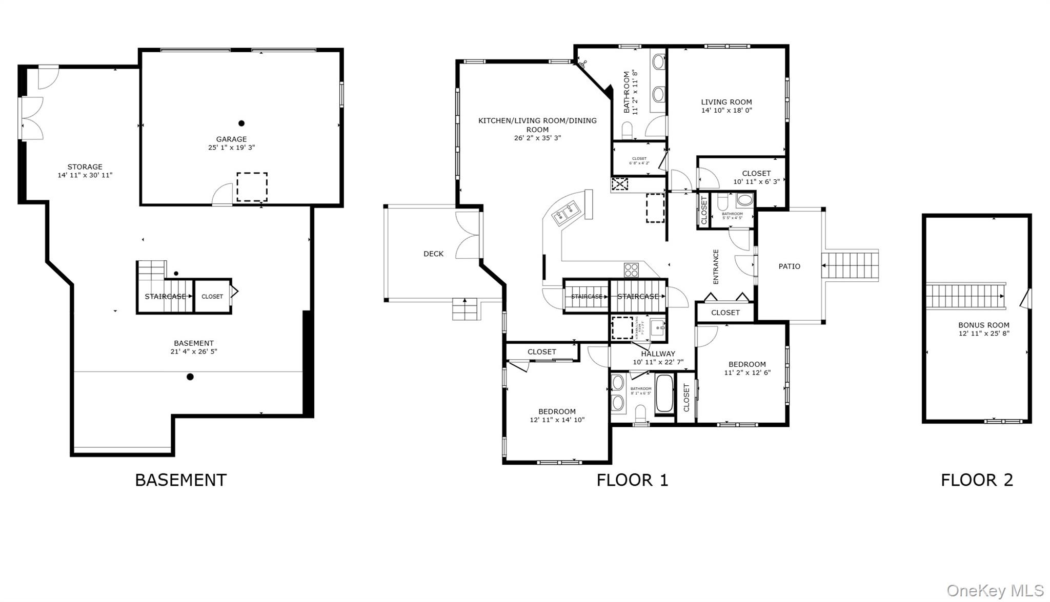
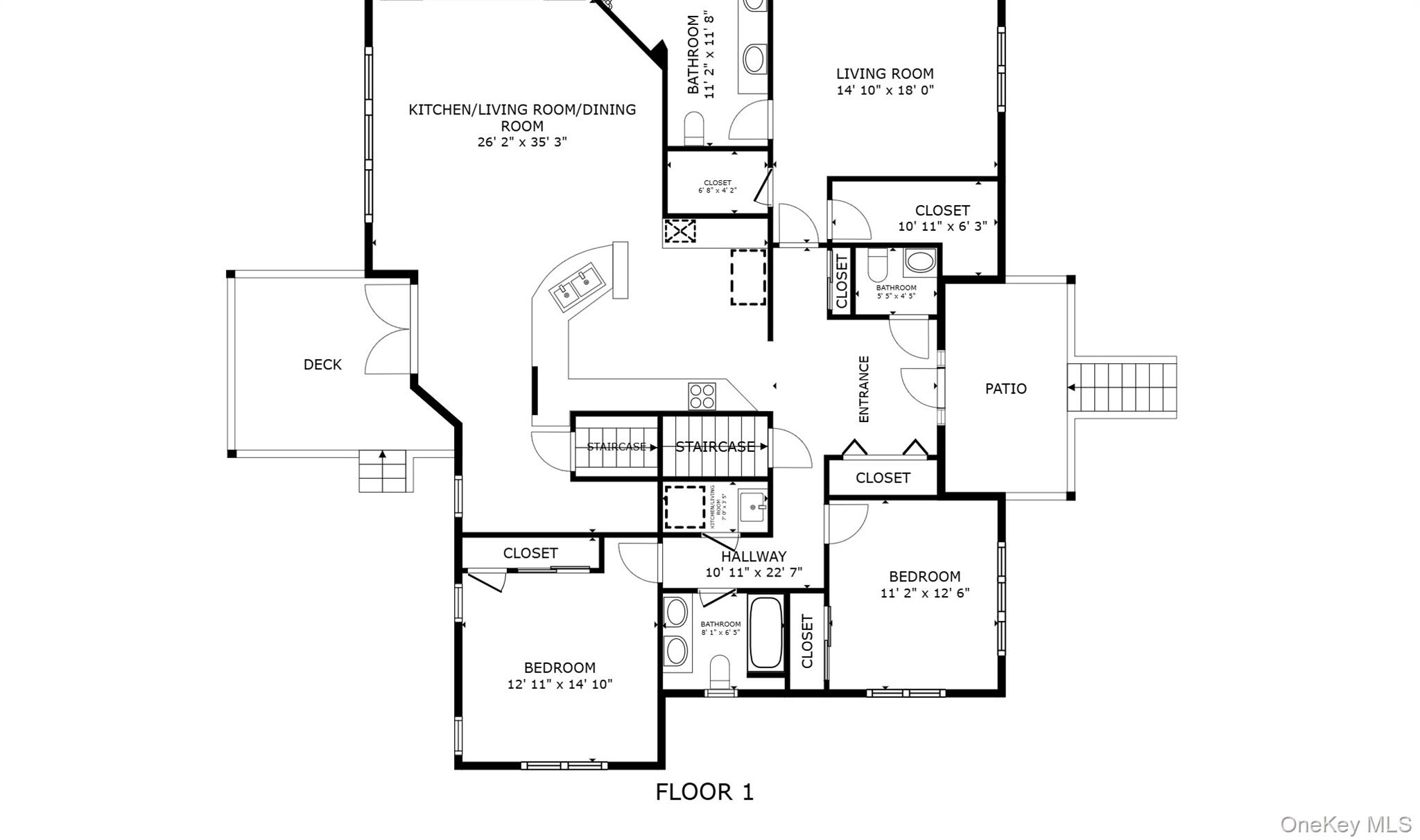
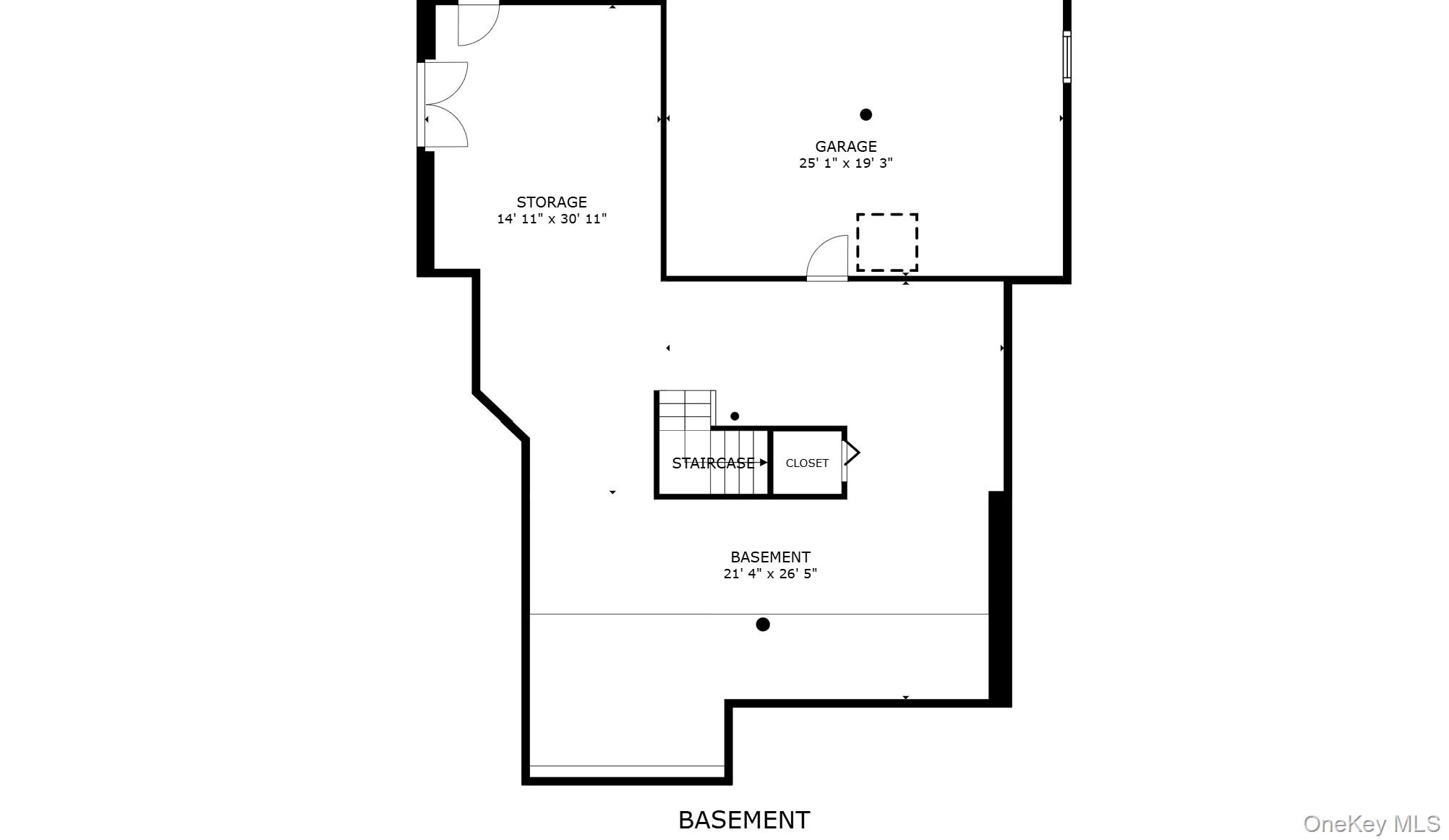
86 Paul Horn Road, Catskill, NY 12414
Down Payment Help
Price Reduced $26,000
$649,000
4beds
2.5bath
2,644sqft
6.33acres
House for Sale
86 Paul Horn Road, Catskill, NY 12414
Listing by: Century 21 New West Properties
1 - 1 of 1 results

NYS Fair Housing NoticeNYS Reasonable Accommodation & Modification NoticePrivacy PolicyTerms of UseADADMCAReal Estate SitemapReal Estate Agent & Office Directory
400 Broadhollow Road, Suite 5, Farmingdale, NY 11735
Copyright © 2026 OneKey® MLS LLC
Display of MLS Data is usually deemed reliable but is NOT guaranteed accurate by the MLS. Buyers are responsible for verifying the accuracy of all information and should investigate the data themselves or retain appropriate professionals.






