
1 home available
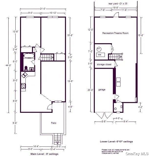
68-12 60th Road, Maspeth, NY 11378
Down Payment Help
Price Increased $50,999

$899,999
2beds
2bath
–sqft
–acres
House for Sale
68-12 60th Road, Maspeth, NY 11378
Listing by: Winzone Realty Inc
1 - 1 of 1 results

NYS Fair Housing NoticeNYS Reasonable Accommodation & Modification NoticePrivacy PolicyTerms of UseADADMCAReal Estate SitemapReal Estate Agent & Office Directory
400 Broadhollow Road, Suite 5, Farmingdale, NY 11735
Copyright © 2026 OneKey® MLS LLC
Display of MLS Data is usually deemed reliable but is NOT guaranteed accurate by the MLS. Buyers are responsible for verifying the accuracy of all information and should investigate the data themselves or retain appropriate professionals.






