
1 home available
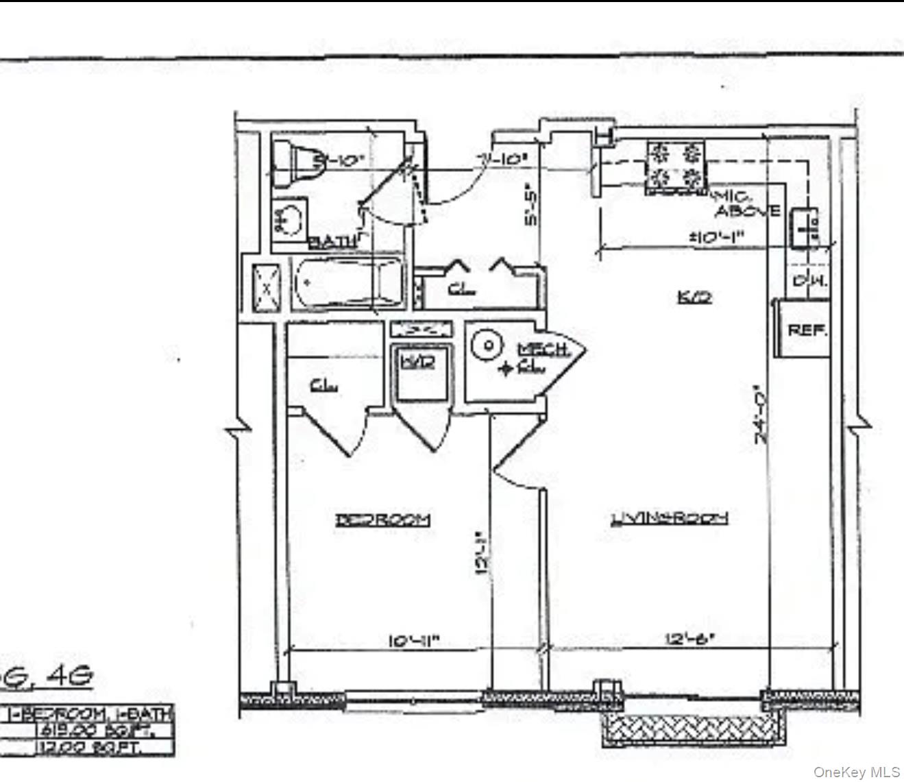
6334 Fresh Pond Road # 4G, Ridgewood, NY 11385
Down Payment Help
$528,888
1beds
1bath
–sqft
–acres
Condo for Sale
6334 Fresh Pond Road # 4G, Ridgewood, NY 11385
Listing by: Maureen Folan R E Group LLC
1 - 1 of 1 results

NYS Fair Housing NoticeNYS Reasonable Accommodation & Modification NoticePrivacy PolicyTerms of UseADADMCAReal Estate SitemapReal Estate Agent & Office Directory
400 Broadhollow Road, Suite 5, Farmingdale, NY 11735
Copyright © 2025 OneKey® MLS LLC
Display of MLS Data is usually deemed reliable but is NOT guaranteed accurate by the MLS. Buyers are responsible for verifying the accuracy of all information and should investigate the data themselves or retain appropriate professionals.






