
1 home available
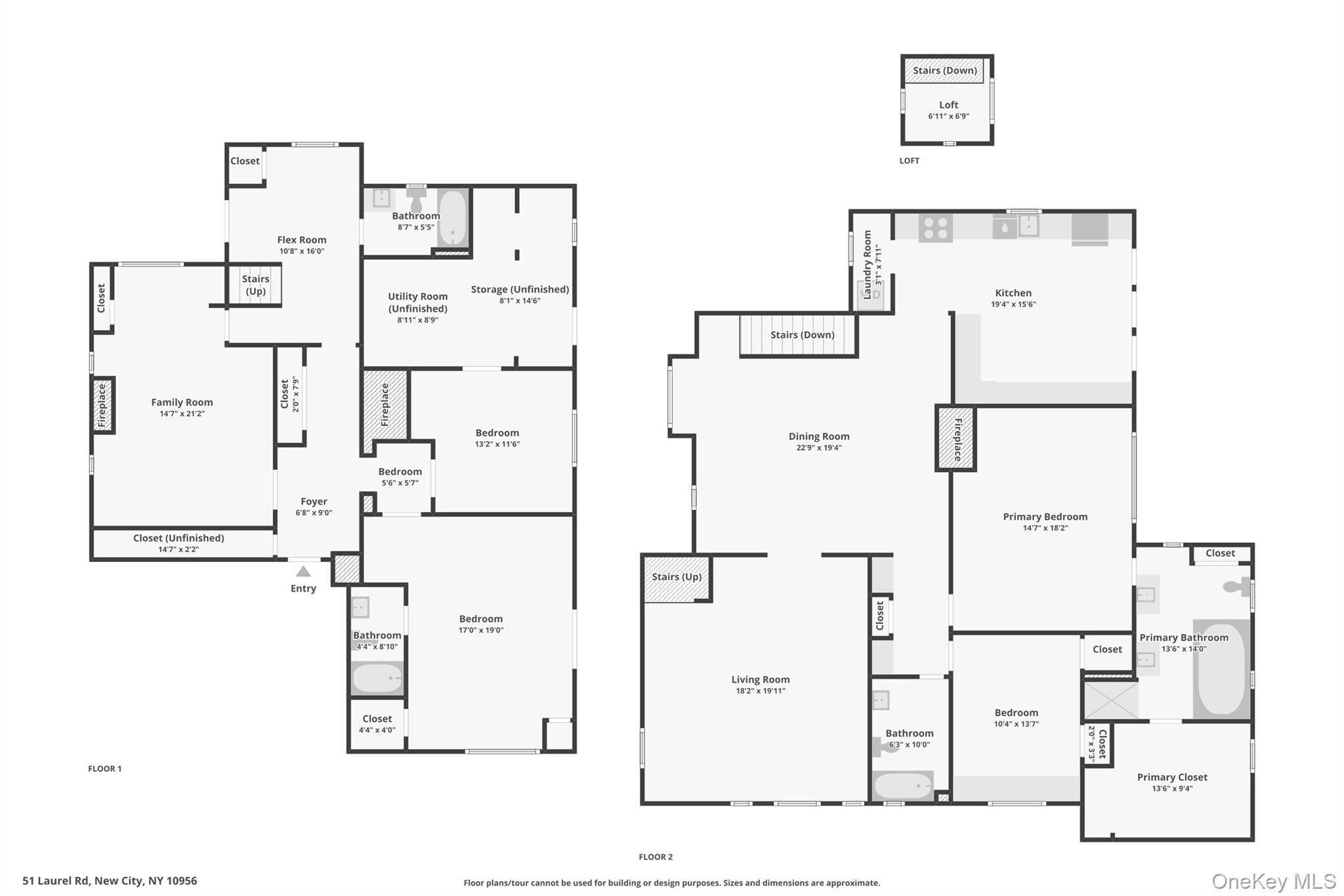
51 Laurel Road, New City, NY 10956
Down Payment Help
PendingVirtual Tour
$825,000
4beds
4bath
3,509sqft
1.03acres
House for Sale
51 Laurel Road, New City, NY 10956
Listing by: Howard Hanna Rand Realty
1 - 1 of 1 results

NYS Fair Housing NoticeNYS Reasonable Accommodation & Modification NoticePrivacy PolicyTerms of UseADADMCAReal Estate SitemapReal Estate Agent & Office Directory
400 Broadhollow Road, Suite 5, Farmingdale, NY 11735
Copyright © 2026 OneKey® MLS LLC
Display of MLS Data is usually deemed reliable but is NOT guaranteed accurate by the MLS. Buyers are responsible for verifying the accuracy of all information and should investigate the data themselves or retain appropriate professionals.






