
1 home available
50-15 199th Street, Fresh Meadows, NY 11365
Down Payment Help
PendingPrice Reduced $52,000
$1,198,000
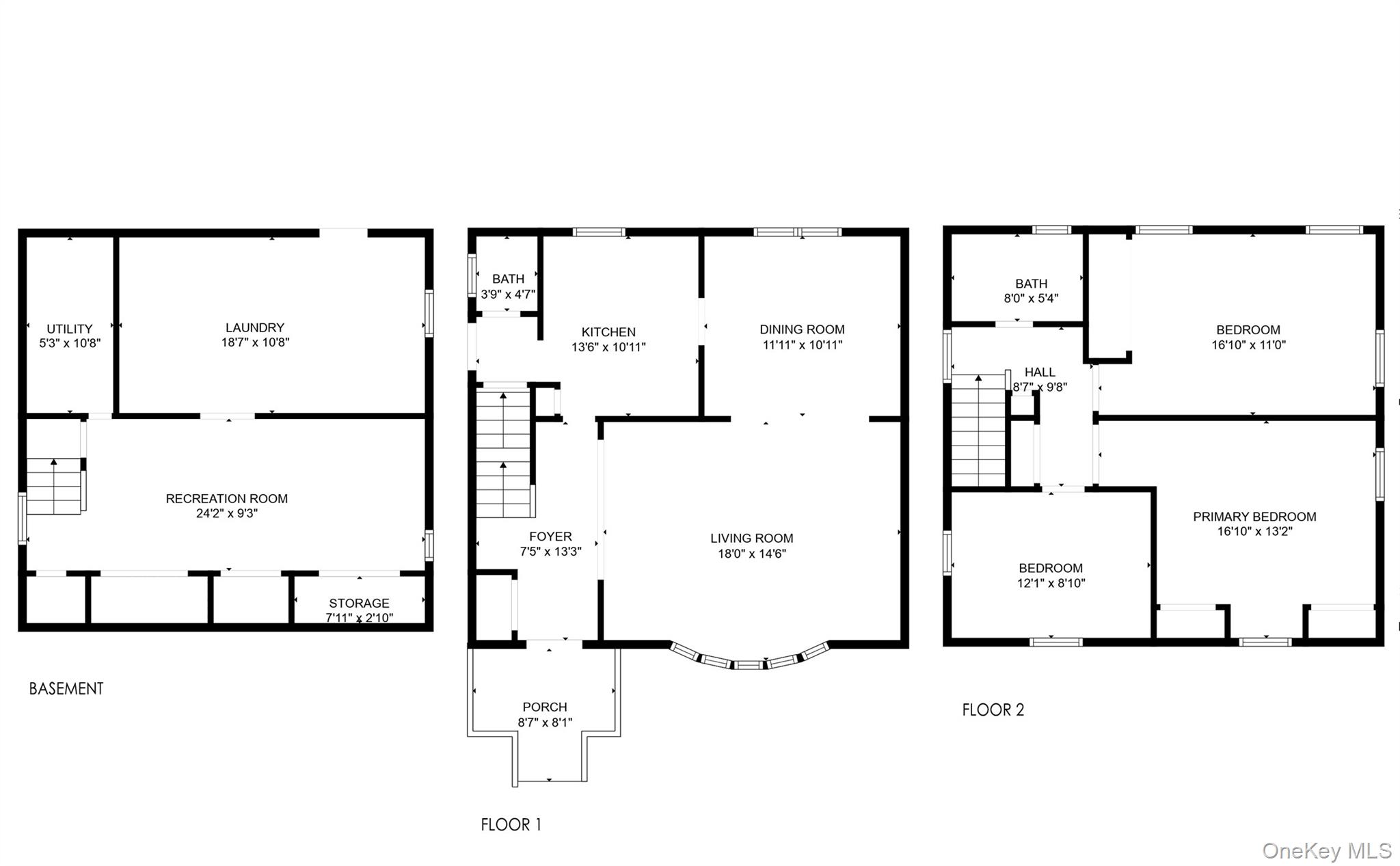
3beds
1.5bath
1,568sqft
0.09acres
House for Sale
50-15 199th Street, Fresh Meadows, NY 11365
Listing by: Prospes Real Estate Corp
1 - 1 of 1 results

NYS Fair Housing NoticeNYS Reasonable Accommodation & Modification NoticePrivacy PolicyTerms of UseADADMCAReal Estate SitemapReal Estate Agent & Office Directory
400 Broadhollow Road, Suite 5, Farmingdale, NY 11735
Copyright © 2026 OneKey® MLS LLC
Display of MLS Data is usually deemed reliable but is NOT guaranteed accurate by the MLS. Buyers are responsible for verifying the accuracy of all information and should investigate the data themselves or retain appropriate professionals.






