
- Buy
- Rent
- Commercial
- Find an Agent
- NYS Fair Housing Notice
- Language

463 Haverstraw Road, Suffern, NY 10901










NY/Rockland County/Suffern/10901/463 Haverstraw Road, Suffern, NY 10901463 Haverstraw Road, Suffern, NY 10901
463 Haverstraw Road, Suffern, NY 10901
City/Town:Suffern Post Office: Suffern
House for Sale by Rachel L Baruchov, Platinum Realty Associates.
- Overview
- Details
- Open Houses
- More
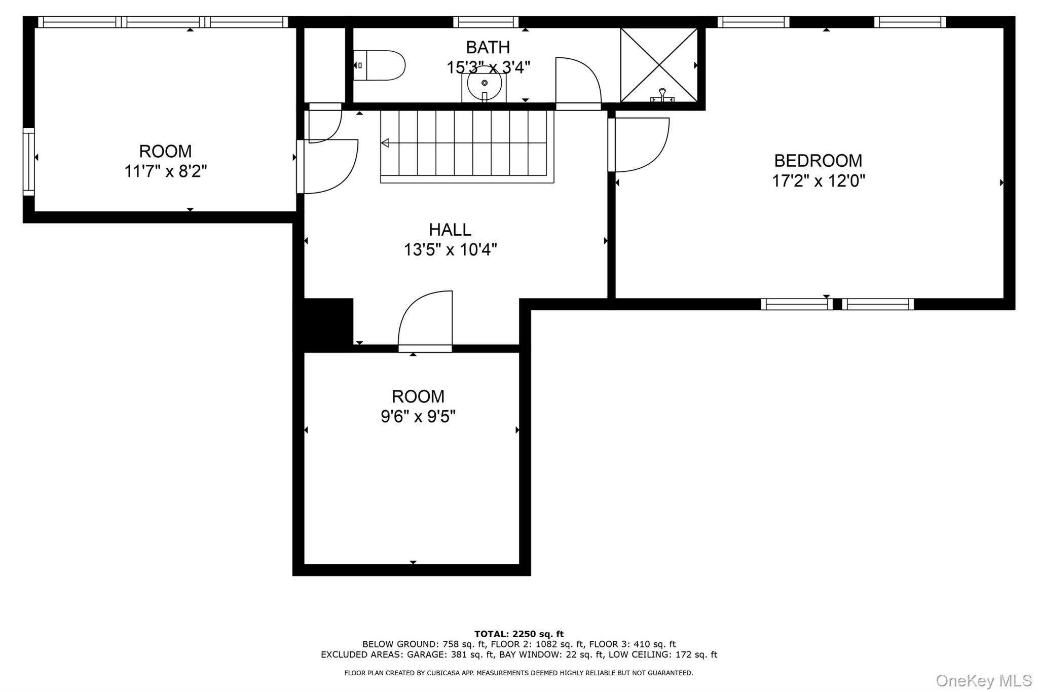
Don't miss the opportunity to own this spectacular and truly one-of-a-kind Capecod retreat, nestled in the heart of Montebello, NY. Surrounded by serene natural landscapes and set on nearly an acre of flat, usable land, this custom-renovated gem is more than a home—it's a private sanctuary. Enjoy a relaxing retreat every moment you spend in this 2/3 bedroom, 2 bathroom home. From the free-flowing floorplan indoors, to the backyard oasis, you won't want to leave. This custom renovated property features backyard with a gorgeous stone patio framing an inground gunite, salt water pool, a natural stone diving board, and hot tub with temperature control capabilities. Dry sauna(4-6 seater) was added for an even more spa-like exterior along with more practical amenities like the irrigation system front and back with 16 zones, and convenient outdoor shower. More notably, this property overlooks the stunning views of the Mahwah River with a private bridge that passes over the stream leading to your own private island. Imagine nights by the firepit, listening to the river flow, and making amazing memories with loved ones! The natural beauty extends to the front of the home with front yard/garden alongside a long driveway leading to the attached 2 car-garage. Complete privacy behind luscious tree lining all around the property. Enter through foyer into the living room filled with natural light. Boasting a striking stone wall with wood burning fireplace, hi-hats, and gleaming hardwood floors throughout. Enjoy cooking in the eat-in kitchen equipped with stainless-steel- appliances, dishwasher, granite counter tops, pantry, and breakfast bar. Have gatherings in the formal dining room with walk-out to backyard. One of the most captivating features is the main floor spa-inspired bathroom. Surrounded by walls of windows and offering direct access to the backyard, this space features a luxurious soaking tub, an open stone-tiled rain shower, and a double vanity—creating an immersive, nature-inspired experience. Just down the hall, a guest bedroom offers a cozy and private space for overnight visitors. Upstairs, a loft area provides ample storage, including a walk-in closet, while the serene primary bedroom and full bath with a standing shower complete the second floor. Basement offers flexibility with more storage options, plus a recreation area, an additional room/office/bedroom, and laundry room. Other amenities of this home are the all house generator, force air (1 zone), central air conditioning (1 zone), security system hardwiring, outdoor lighting, shed, Tesla charger and MORE! With a harmonious blend of luxury, nature, and privacy, this incredible home is the ultimate escape.