
1 result available
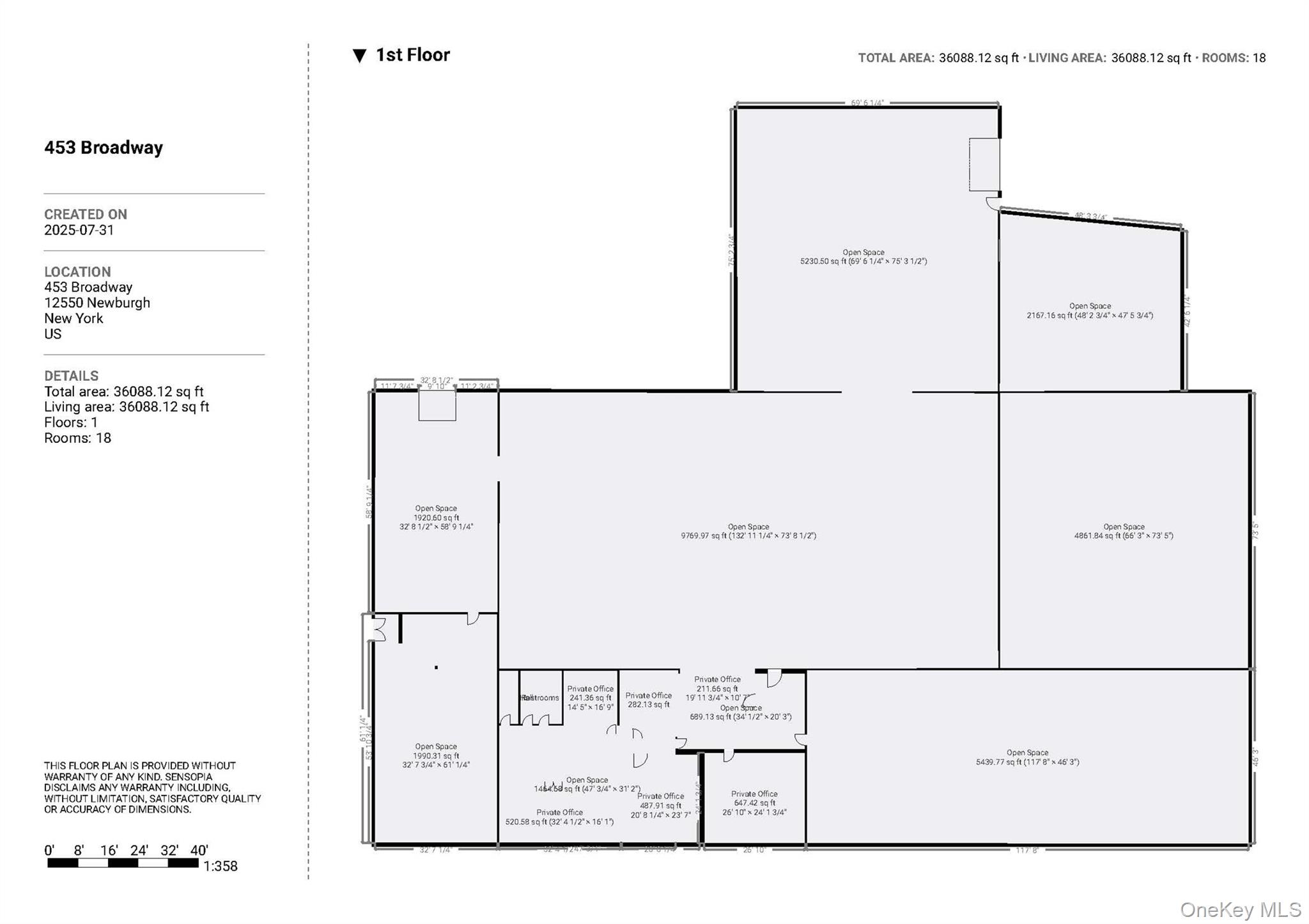
453 Broadway, Newburgh, NY 12550
PendingPrice Reduced $301,000
$2,999,000
87,120sqft
2acres
Commercial Sale
453 Broadway, Newburgh, NY 12550
Listing by: Harbor Gray Real Estate LLC
1 - 1 of 1 results

NYS Fair Housing NoticeNYS Reasonable Accommodation & Modification NoticePrivacy PolicyTerms of UseADADMCAReal Estate SitemapReal Estate Agent & Office Directory
400 Broadhollow Road, Suite 5, Farmingdale, NY 11735
Copyright © 2026 OneKey® MLS LLC
Display of MLS Data is usually deemed reliable but is NOT guaranteed accurate by the MLS. Buyers are responsible for verifying the accuracy of all information and should investigate the data themselves or retain appropriate professionals.






