
1 home available
45 Venetian Prom, Lindenhurst, NY 11757
Down Payment Help
PendingPrice Reduced $14,000
$675,000
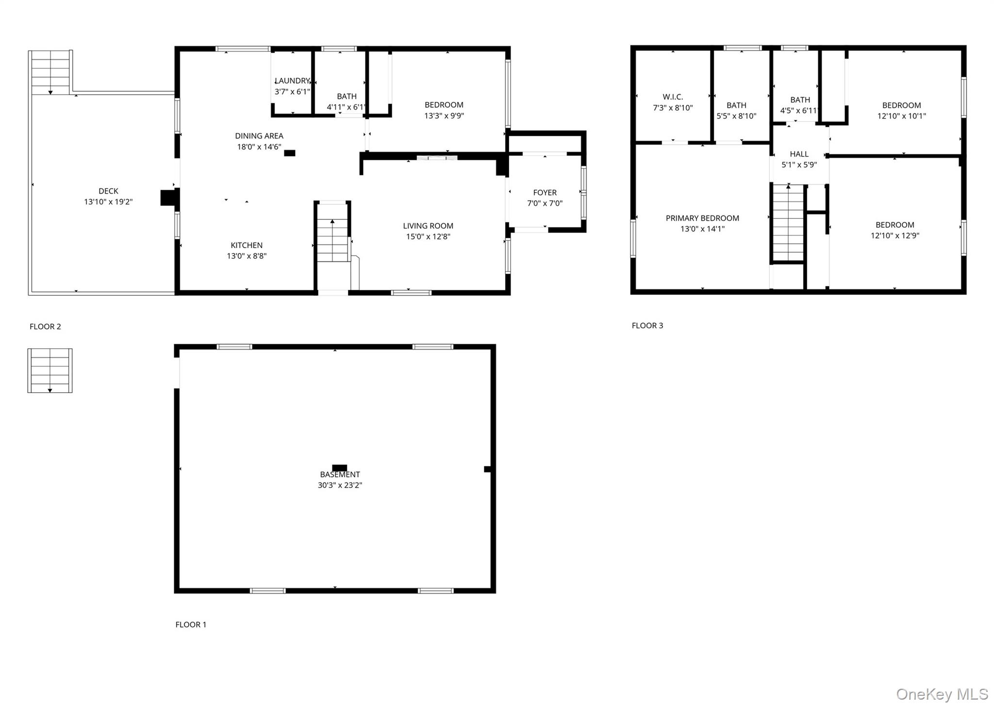
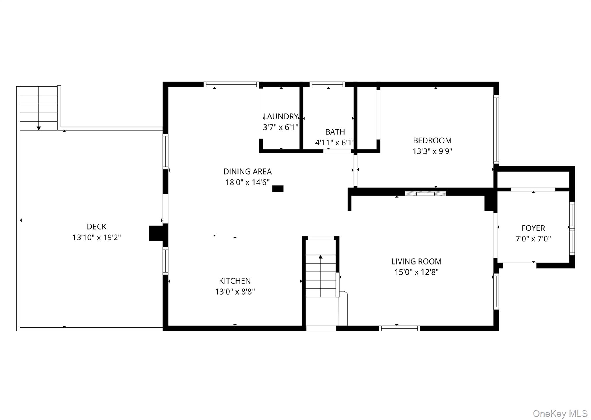
4beds
3bath
1,800sqft
0.09acres
House for Sale
45 Venetian Prom, Lindenhurst, NY 11757
Listing by: Calderon Realty Group Inc
1 - 1 of 1 results

NYS Fair Housing NoticeNYS Reasonable Accommodation & Modification NoticePrivacy PolicyTerms of UseADADMCAReal Estate SitemapReal Estate Agent & Office Directory
400 Broadhollow Road, Suite 5, Farmingdale, NY 11735
Copyright © 2026 OneKey® MLS LLC
Display of MLS Data is usually deemed reliable but is NOT guaranteed accurate by the MLS. Buyers are responsible for verifying the accuracy of all information and should investigate the data themselves or retain appropriate professionals.






