
1 home available
41 Bridle Path Road, Ossining, NY 10562
Down Payment Help
Pending
$679,900
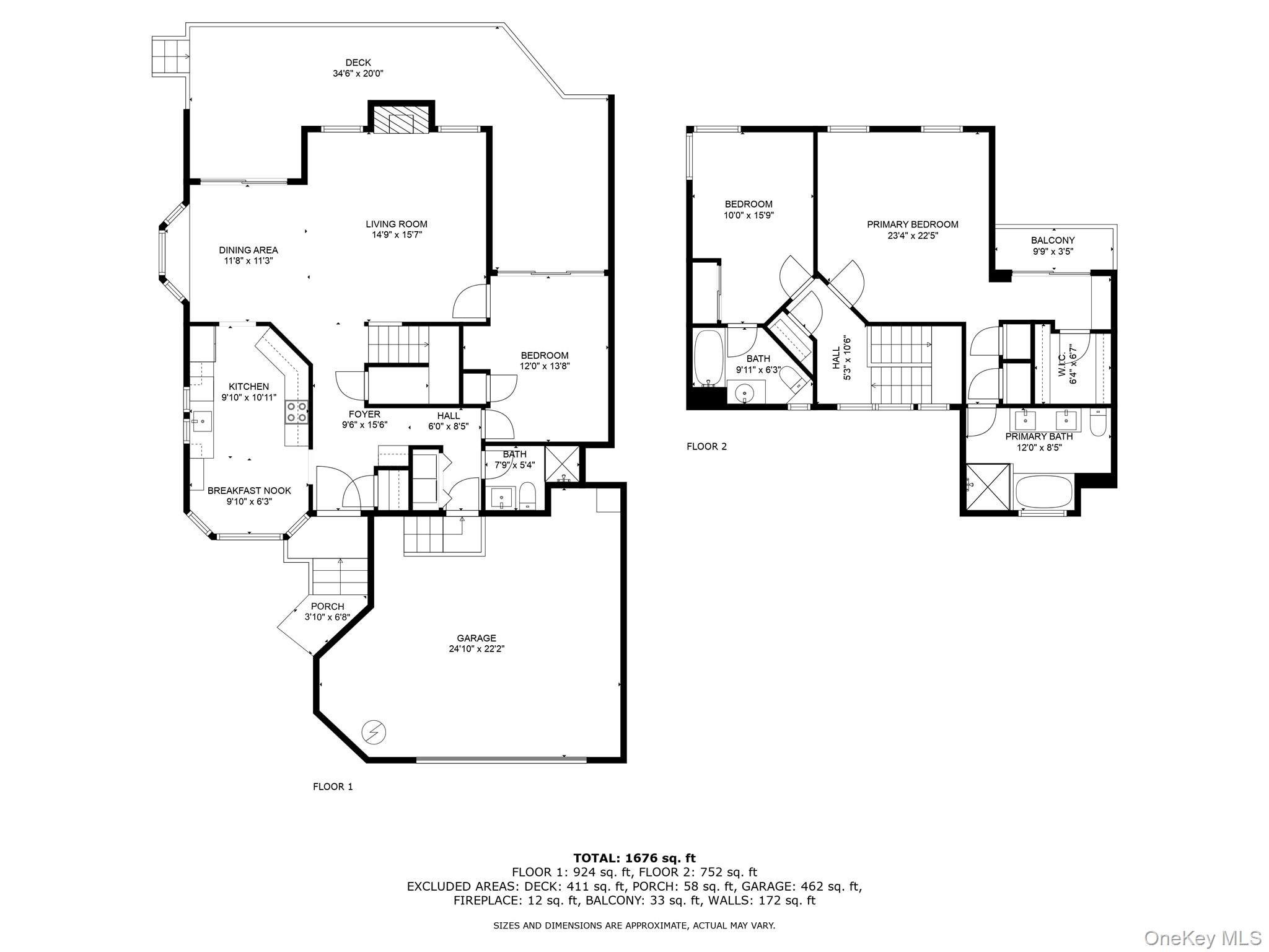
2beds
3bath
1,784sqft
0.01acres
Condo for Sale
41 Bridle Path Road, Ossining, NY 10562
Listing by: REO Edge LLC
1 - 1 of 1 results

NYS Fair Housing NoticeNYS Reasonable Accommodation & Modification NoticePrivacy PolicyTerms of UseADADMCAReal Estate SitemapReal Estate Agent & Office Directory
400 Broadhollow Road, Suite 5, Farmingdale, NY 11735
Copyright © 2025 OneKey® MLS LLC
Display of MLS Data is usually deemed reliable but is NOT guaranteed accurate by the MLS. Buyers are responsible for verifying the accuracy of all information and should investigate the data themselves or retain appropriate professionals.






