
- Buy
- Rent
- Commercial
- Find an Agent
- NYS Fair Housing Notice
- Language

381 W Neck Road, Lloyd Harbor, NY 11743










NY/Suffolk County/Lloyd Harbor/11743/381 W Neck Road, Lloyd Harbor, NY 11743381 W Neck Road, Lloyd Harbor, NY 11743
381 W Neck Road, Lloyd Harbor, NY 11743
City/Town:Lloyd Harbor Post Office: Lloyd Harbor
House for Sale by Joyce E. Mennella, Lucky to Live Here Realty.
- Overview
- Details
- Open Houses
- More
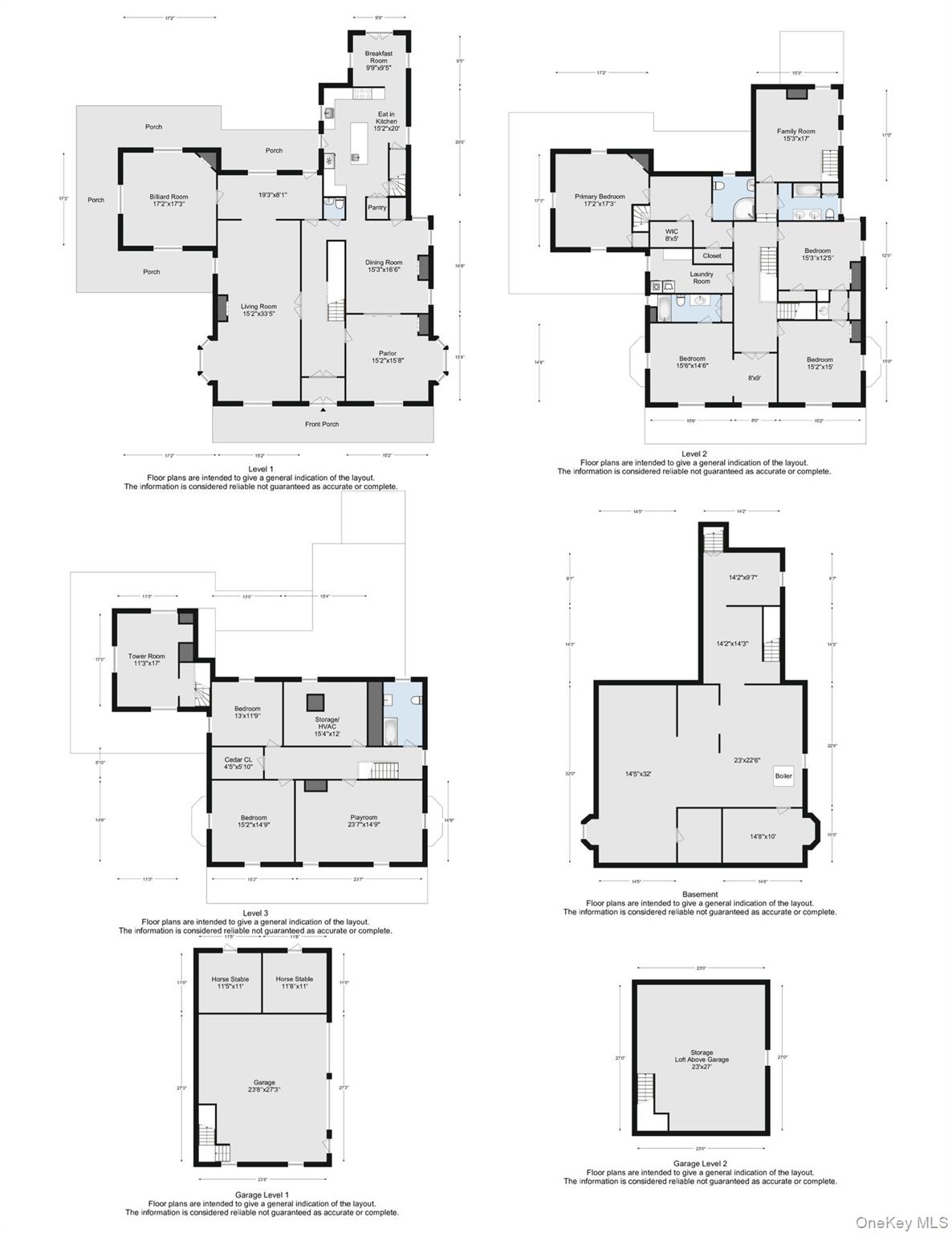
Step into a world of timeless elegance with this beautifully restored Historic Victorian-Era Estate built in 1869 designed by renowned architect Charles Homer Davis. Grandiose and gracefully set atop two pristine acres in the Incorporated Village of Lloyd Harbor, this stately home offers a commanding presence with sweeping views of nature and tranquility. Boasting Queen Anne-style flourishes, including sweeping gables and a tower with wrap around porch that hints at the home's artistic legacy. The expansive layout is filled with warmth yet boasts over 6500 sqft of living space over 3 floors. Sunlight streams through oversized windows highlighting exquisite birch and walnut inlaid hardwood floors, intricate hand-carved moldings with a rich, welcoming color palette. The soaring 10 ft ceilings and open floor plan create an inviting sense of space which is perfect for both intimate gatherings and grand entertaining. Chef's eat in kitchen provides a modern display of craftsmanship with marble & soapstone counters, Sub Zero refrigerator, Wolf gas oven range, radiant heated floors with direct access to back staircase and breakfast nook off the deck. Carefully updated with thoughtful enhancements, this home features beautifully appointed baths with radiant heated floors, natural gas heating, central air, and a Kohler gas generator giving comfort in every season. Outdoor living is just as inviting with multiple access to wrap-around porch which beckon for morning coffee or quiet evenings; while the large in-ground pool offers endless Summer enjoyment, with new liner, steps, and heater in 2024/25. The spacious detached 2 car garage adjoins former horse paddocks which presents endless possibilities. Irrigation system allows for a meticulously maintained property with gardens and mature specimen trees. Perfectly positioned near the vibrant town of Huntington, you're just minutes from charming restaurants, boutique shops, cultural events, and nightlife. Nature enthusiasts will appreciate nearby hiking trails, scenic parks, and preserved lands, while beach lovers can escape to Long Island’s breathtaking shores in no time. As a resident of Lloyd Harbor, you’ll also enjoy access to the private beach only 1.7 miles away including tennis facilities, moorings, and summer camp, and only 3 miles to Caumsett State Park. An unparalleled lifestyle in one of the North Shore’s most coveted communities. Taxes: $29,261/yr. Property is on the National Historic Registry.