
1 home available
375 Park Avenue, Yonkers, NY 10703
Down Payment Help
PendingPrice Reduced $1,001
$908,999
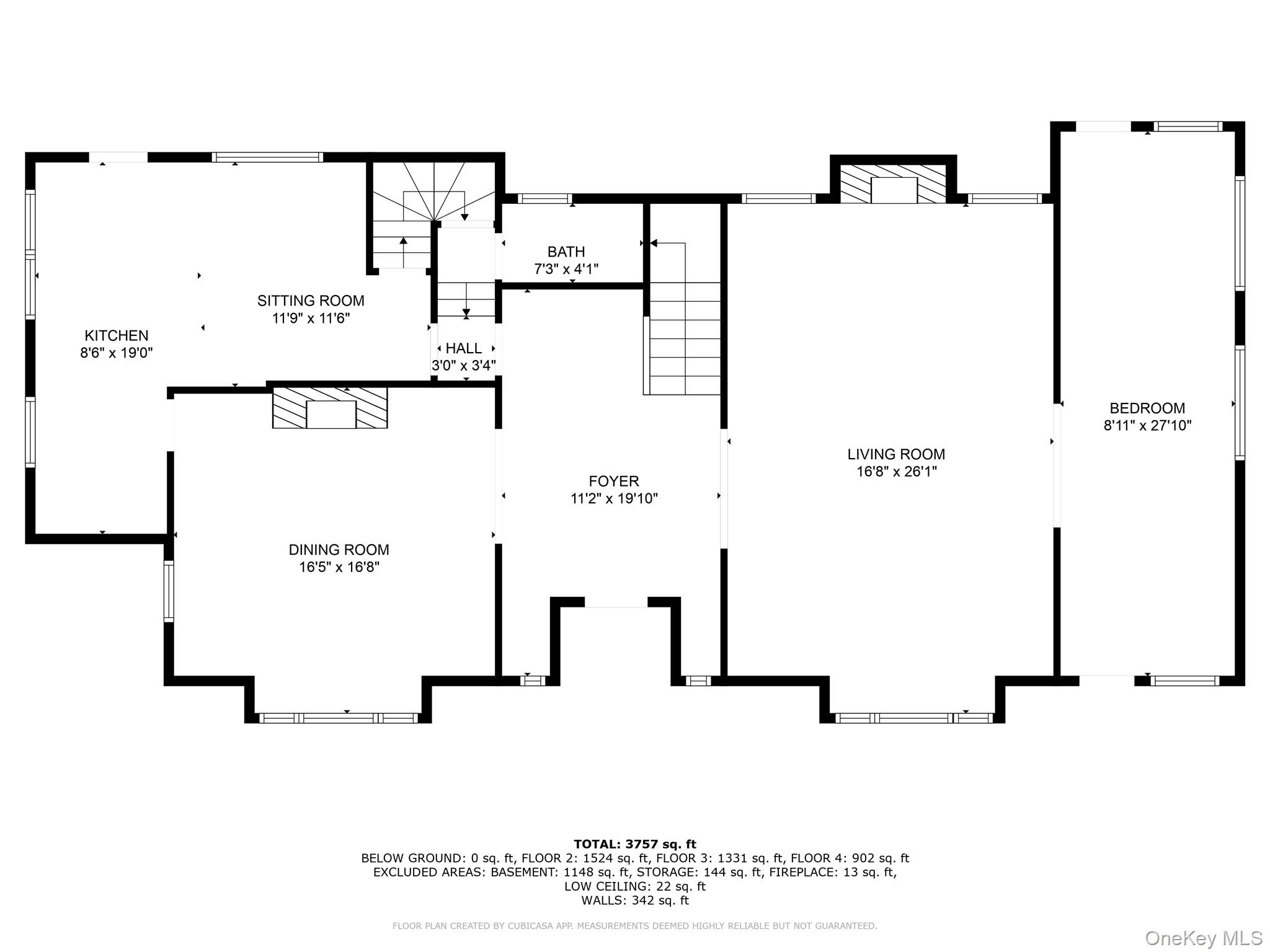
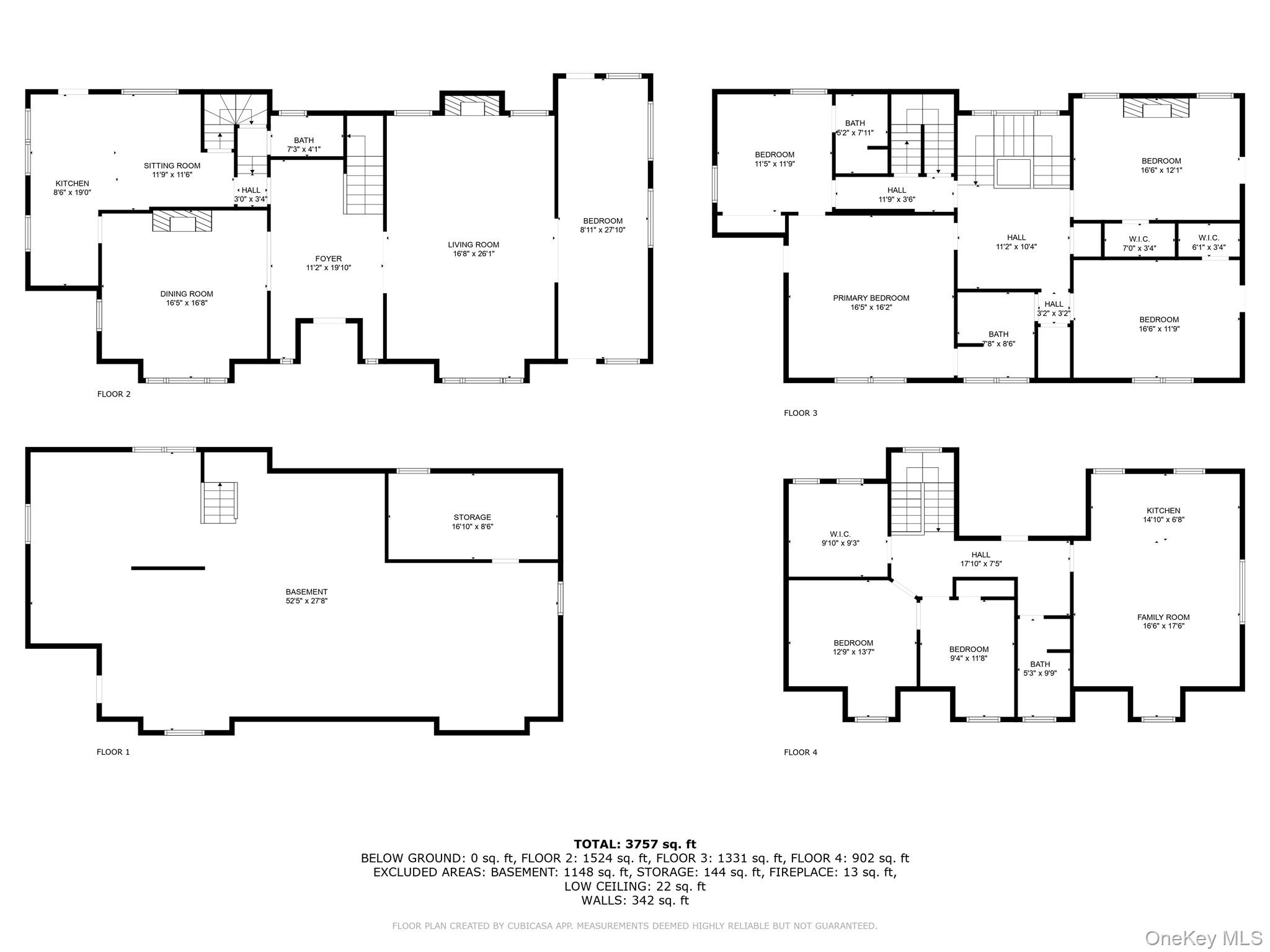
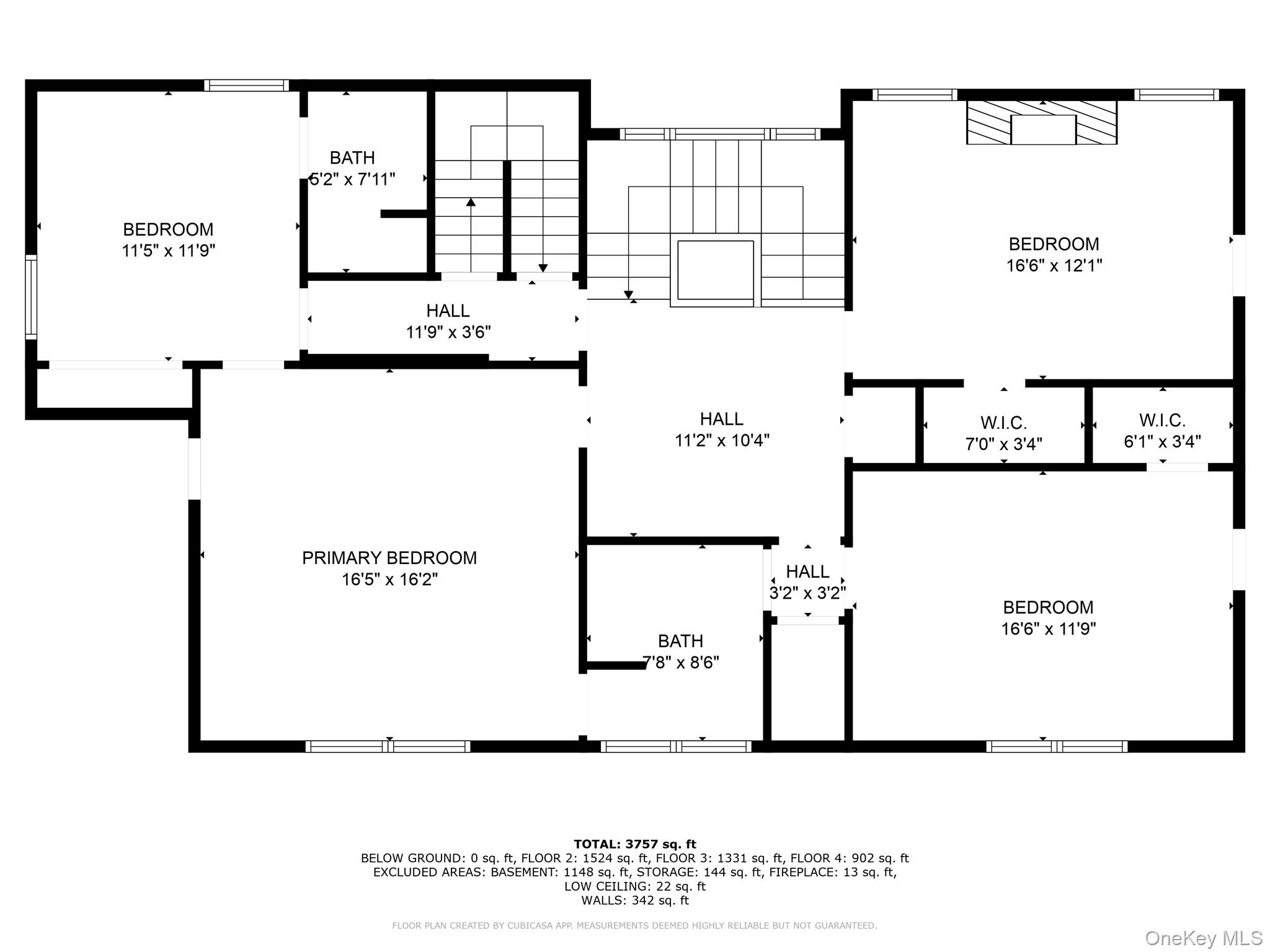
7beds
3.5bath
3,667sqft
0.28acres
House for Sale
375 Park Avenue, Yonkers, NY 10703
Listing by: Baez Real Estate, Inc.
1 - 1 of 1 results

NYS Fair Housing NoticeNYS Reasonable Accommodation & Modification NoticePrivacy PolicyTerms of UseADADMCAReal Estate SitemapReal Estate Agent & Office Directory
400 Broadhollow Road, Suite 5, Farmingdale, NY 11735
Copyright © 2026 OneKey® MLS LLC
Display of MLS Data is usually deemed reliable but is NOT guaranteed accurate by the MLS. Buyers are responsible for verifying the accuracy of all information and should investigate the data themselves or retain appropriate professionals.






