
- Buy
- Rent
- Commercial
- Find an Agent
- NYS Fair Housing Notice
- Language

34-39 82nd Street # 52, Jackson Heights, NY 11372










NY/Queens/Jackson Heights/11372/34-39 82nd Street # 52, Jackson Heights, NY 1137234-39 82nd Street # 52, Jackson Heights, NY 11372
34-39 82nd Street # 52, Jackson Heights, NY 11372
City/Town:Jackson Heights Post Office: Jackson Heights
Co-op for Sale by William D. Kokoris, Compass Greater NY LLC.
- Overview
- Details
- Open Houses
- More
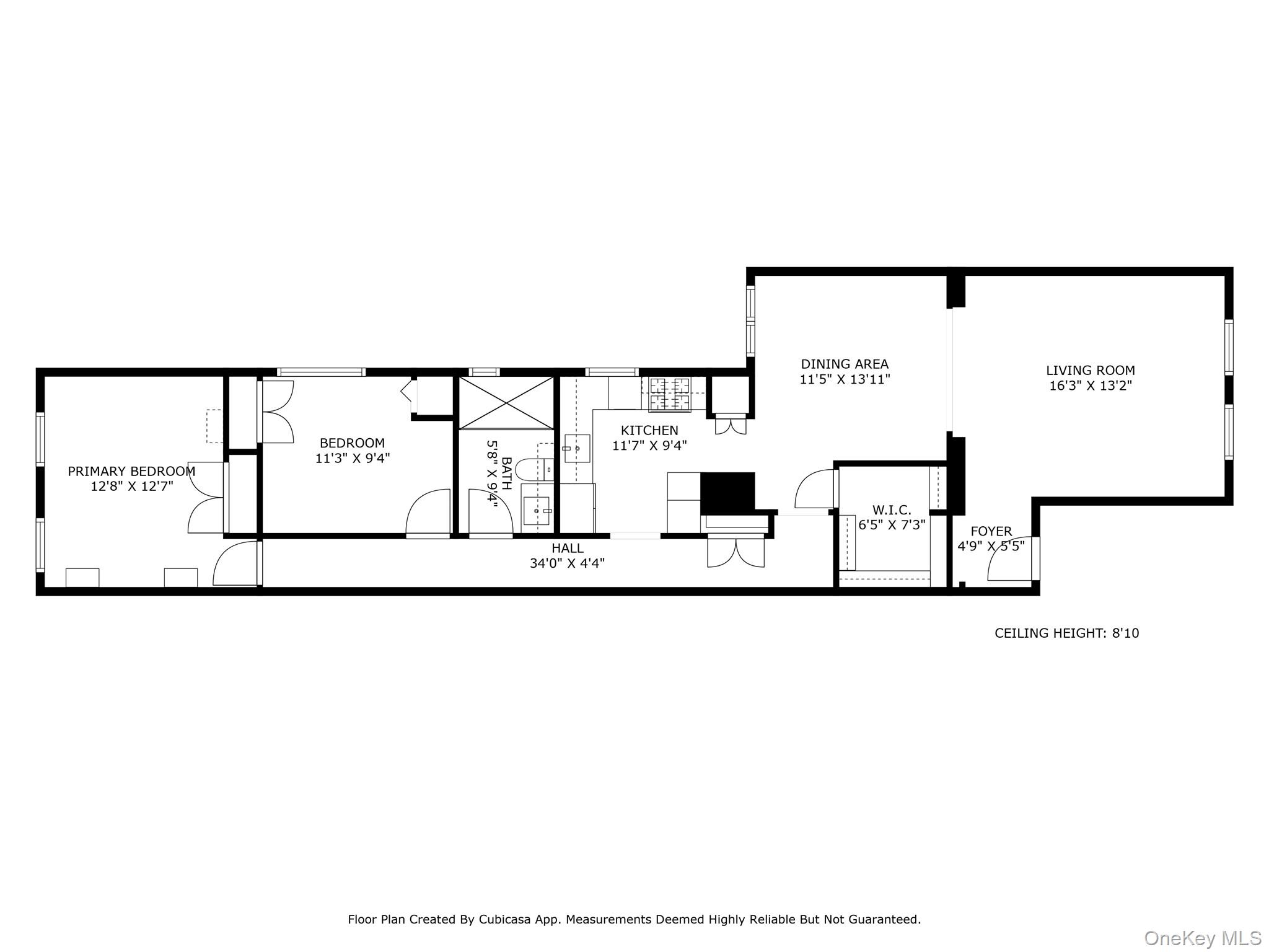
Bathed in eastern, western, and southern light, this top-floor apartment in The Colonials offers the perfect blend of prewar charm and modern renovation. With only two apartments per floor, the home enjoys privacy and exclusivity while being ideally situated in the heart of the Historic District. A gracious foyer with an intricate archway welcomes you into the living and dining areas. Ceiling medallions with stylish light fixtures and fans, crown molding, and inlaid hardwood floors create a timeless elegance, while windows on opposite sides of the room flood the space with natural light. The dining area comfortably accommodates a table for six, making it ideal for gatherings. A truly exceptional feature of the foyer is the creation of a gigantic walk-in closet, providing remarkable storage and functionality rarely found in homes of this kind. The thoughtfully renovated kitchen has been designed with both efficiency and beauty in mind. Quartz countertops, modern grey and white cabinetry, and a white subway tile backsplash are complemented by stainless steel appliances, including a French-door refrigerator, dishwasher, and five-burner stove with a vented exhaust that leads outside the building. With pantry space, abundant cabinetry, and access from both the hallway and dining room, the kitchen offers seamless flow and convenience. Both bedrooms are generous in size, with the primary featuring built-in closets and two large windows. The second bedroom includes its own large built-in closet and an additional closet that houses a stackable washer and dryer. A hallway lined with three globe pendant lights and a circular medallion also contains a linen closet, further enhancing the home’s storage capabilities. The windowed bathroom is finished with floor-to-ceiling tile and recessed lighting. A half-glass shower with dual shower heads is paired with a matte black panel featuring both a rainfall showerhead and a handheld sprayer. The industrial-inspired design continues with a grid shower frame, floating vanity, matte black fixtures, and a fogless medicine cabinet, creating a sleek, modern retreat. Additional amenities include laundry in the basement, a fully functioning dumbwaiter, and a waitlisted storage room. The building also offers a stunning, professionally landscaped common backyard, complete with bluestone pavers, outdoor furniture, a BBQ, and a dining table for six—an ideal space for relaxing with a book or entertaining guests. Pets are allowed, but subletting is not. Beyond the apartment itself, the location is a true extension of your lifestyle. Just moments from the subway, shopping, and some of Jackson Heights’ best restaurants, you’ll also find yourself near neighborhood treasures like Paseo Park, Travers Park, and the Sunday Farmers Market. This smartly reimagined apartment is both efficient and luxurious, with no detail overlooked and no space wasted. A rare opportunity to own a residence that combines historic character with modern comfort in one of Jackson Heights’ most beloved co-op buildings.