
- Buy
- Rent
- Commercial
- Find an Agent
- NYS Fair Housing Notice
- Language

264 Washington Avenue, Jamesport, NY 11947










NY/Suffolk County/Jamesport/11947/264 Washington Avenue, Jamesport, NY 11947264 Washington Avenue, Jamesport, NY 11947
264 Washington Avenue, Jamesport, NY 11947
City/Town:Jamesport Post Office: Jamesport
House for Sale by Rene A. Giacobbe, Douglas Elliman Real Estate.
- Overview
- Details
- Open Houses
- More
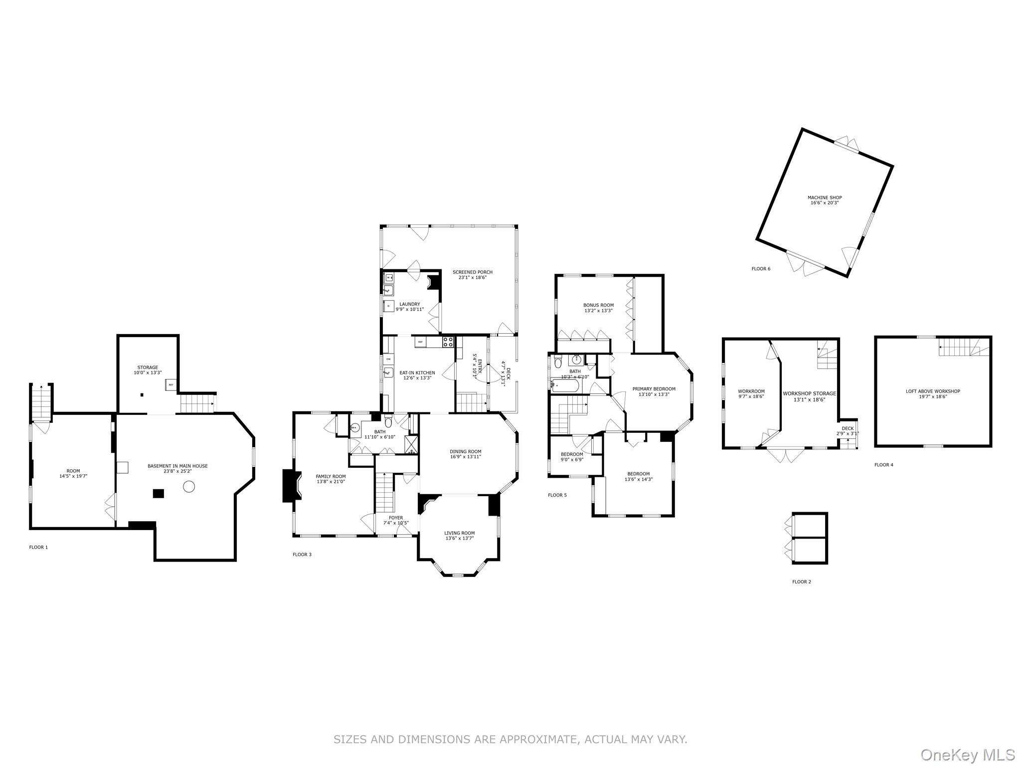
Welcome to 264 Washington Avenue in the Heart of the Village of Jamesport on the North Fork of Long Island. Originally Built in 1883. Lovingly Inhabited and Maintained Over the Years. A Very Special Home and Property. All Updated Throughout While Keeping the Old-World Charm and Detailing. Custom Built-Ins, Moldings and Wood Flooring are Mostly Original. Stained Glass Accents. The Eat-In Kitchen is Updated with White Wood Cabinetry, Black Granite Countertops, Stainless Appliances, Brand New Induction Range for Cooking. There is a Wood Burning Stove in the Mudroom with Laundry Off the Kitchen. 2 Additional Gas Fireplaces in the Family Room and Living Room. The Home Boasts 3+ Bedrooms, All Located on the Second Floor of the Home. The Primary Bedroom has a Bonus Room Currently Storage and Additional Living Space. The Second Floor Full Bath Features a Great Claw Foot Tub for Soaking. The Entire House is Geothermal. Solar Panels Service the Home for All Heating and Electric Needs. Extremely Low Energy Costs. The Roof is 5 Years Old and the Solar Panels are Approximately 10 Years Old. There is a Brand-New Oil Tank for the Back-Up Furnace to the Geothermal System. Street Gas Also Services the Home. Tankless Hot Water. Central Air Cools the Home. The Full Basement with Indoor and Exterior Access is Home to All Utilities and the Full House Generator. There is a Great Front Porch on the Home for Enjoyment at Any Time of the Day or Night. A Huge Screened in Porch on the Rear of the Home Allows for Additional Living, Lounge or Entertainment Space. The Property is .77 of an Acre with an Incredible Amount of Yard Space for a Pool and More. There are 2 Outbuildings on the Property. The Workshop Provides a Great Space for the Artist in You with Loft Above and Full Basement Below. There is a Machine Shop to the Rear of the Property with Front and Rear Double Doors for Easy Access for Large Equipment. All Just Around the Corner from Town Center Shoppes, Restaurants, Bakery, Vineyards, Farmstands and Beaches Galore. Make Jamesport Your New Home. You Will Truly Love Where You Live.