
- Buy
- Rent
- Commercial
- Find an Agent
- NYS Fair Housing Notice
- Language

25 Round Hill Road, Armonk, NY 10504










NY/Westchester County/Armonk/10504/25 Round Hill Road, Armonk, NY 1050425 Round Hill Road, Armonk, NY 10504
25 Round Hill Road, Armonk, NY 10504
City/Town:Armonk Post Office: Armonk
House for Sale by Robin Levine, Julia B Fee Sothebys Int. Rlty.
- Overview
- Details
- Open Houses
- More
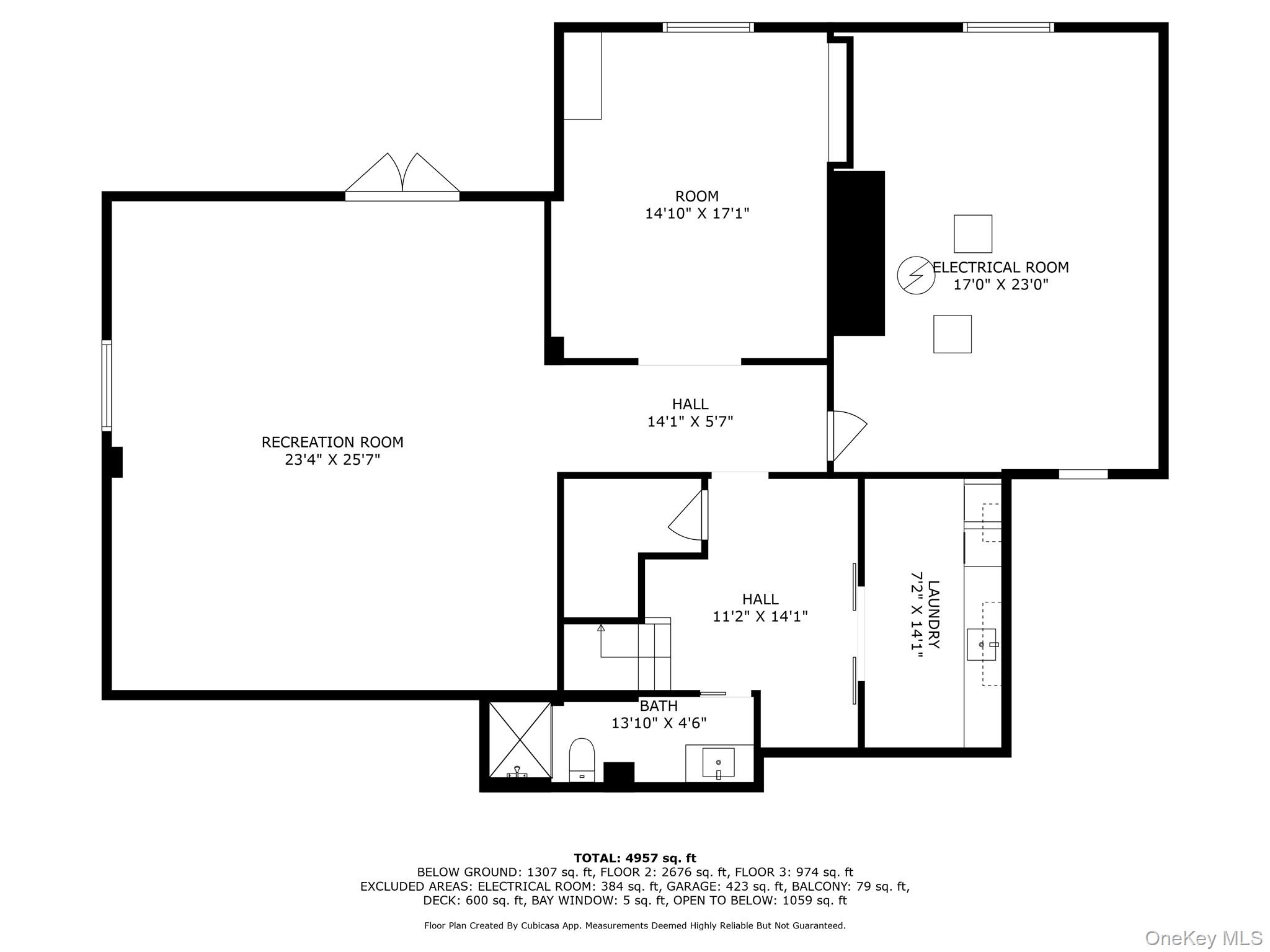
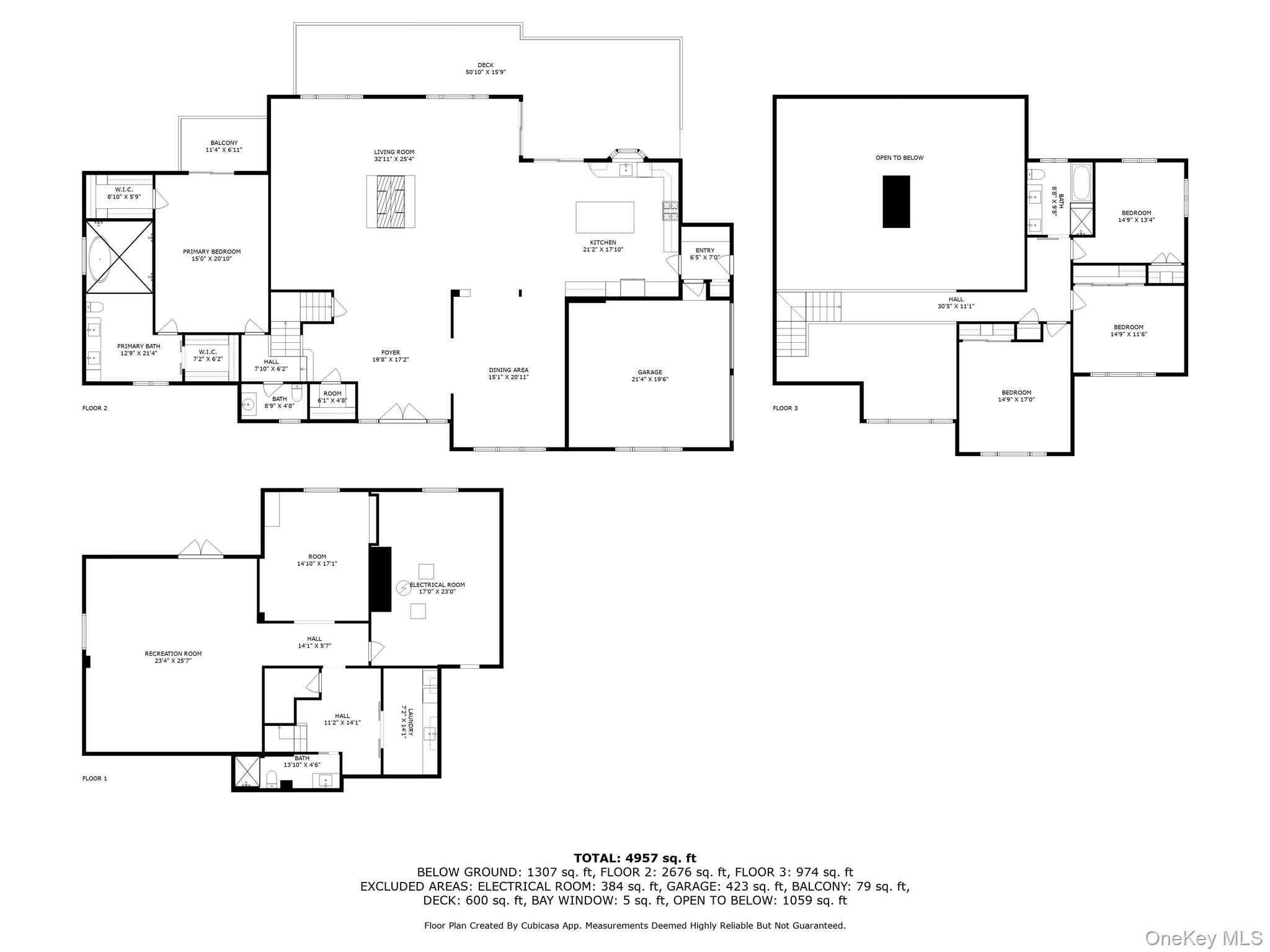
Experience luxury living in this newly fully renovated, turn-key home set on the prestigious Round Hill Rd in Armonk, with the added bonus of the opportunity of joining the Windmill Club. Boasting an expansive open floor plan, large rooms, vaulted ceilings, wide planked white oak hardwood floors, this designer inspired home is filled w/ high end finishes throughout. The large open living room & family room, with vaulted ceilings and free standing, two-sided gas fireplace leads into the most elegant chef's kitchen, fully equipped with stainless steel Thermador appliances (including Thermador Professional Range), quartz countertops, 8 ft. center island and more. The mudroom, with its outfitted cubbies, is situated conveniently to the large 2-car garage and driveway. The formal dining room, with its elegant chandelier and transitional partition; and stunning powder room with a floating vanity and white oak acoustic modern paneling add beauty and uniqueness of the first floor. The primary bedroom ensuite will dazzle you with a vaulted ceiling, spacious, elegantly customized walk-in closets (withe self-closing barn doors), private deck off the bedroom, and a glorious well appointed bathroom with heated floor, stunning cabinetry, deep oversize free standing tub, oversized shower, with digital smart water faucets and shower displays, smart heated toilet, and heated towel bar. Three additional generous sized bedrooms, with custom outfitted closets, and exquisitely designed full bathroom with waterfall faucet, LED mirror and glass enclosed shower, complete the second floor. The basement includes large recreation spaces, a full laundry room with new washer/dryer, farm sink, butcher block countertop, cabinetry and work space, full bathroom, office/den, utility room with 2 new furnaces, new water heater, new vents, new smart thermostats, generator, and lots of storage. The newly renovated maintenance-free deck, spanning across the back of the home, is a perfect spot for entertaining, and enjoying an expansive park -like backyard, including a private in-ground heated pool with pool shed (New pump and filter installed in pool July 2025). In addition to the amazing features of this home, you have the opportunity to join the Windmill Club, as home comes with the MEC, offering many amenities, including a beach, lake for swimming, clubhouse and tennis.