
1 home available
25 Loel Court, Rockville Centre, NY 11570
Down Payment Help
PendingPrice Reduced $90,000
$999,000
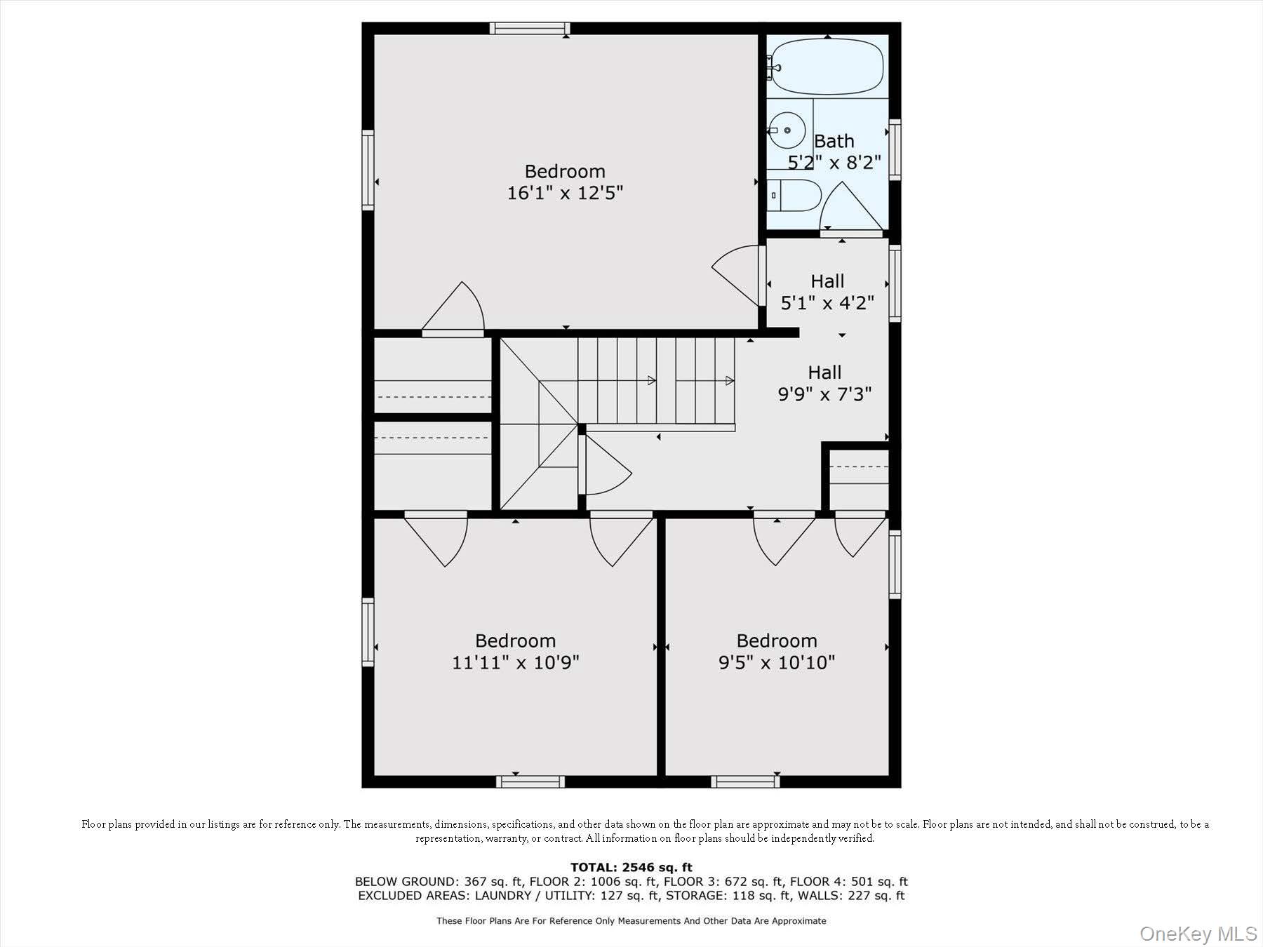
4beds
2.5bath
4,800sqft
0.11acres
House for Sale
25 Loel Court, Rockville Centre, NY 11570
Listing by: Daniel Gale Sothebys Intl Rlty
1 - 1 of 1 results

NYS Fair Housing NoticeNYS Reasonable Accommodation & Modification NoticePrivacy PolicyTerms of UseADADMCAReal Estate SitemapReal Estate Agent & Office Directory
400 Broadhollow Road, Suite 5, Farmingdale, NY 11735
Copyright © 2025 OneKey® MLS LLC
Display of MLS Data is usually deemed reliable but is NOT guaranteed accurate by the MLS. Buyers are responsible for verifying the accuracy of all information and should investigate the data themselves or retain appropriate professionals.






