
1 home available
225 Van Duzer Road, Middletown, NY 10940
Down Payment Help
Open Sat 12:00 PM-2:00 PMPrice Reduced $30,000
$749,900
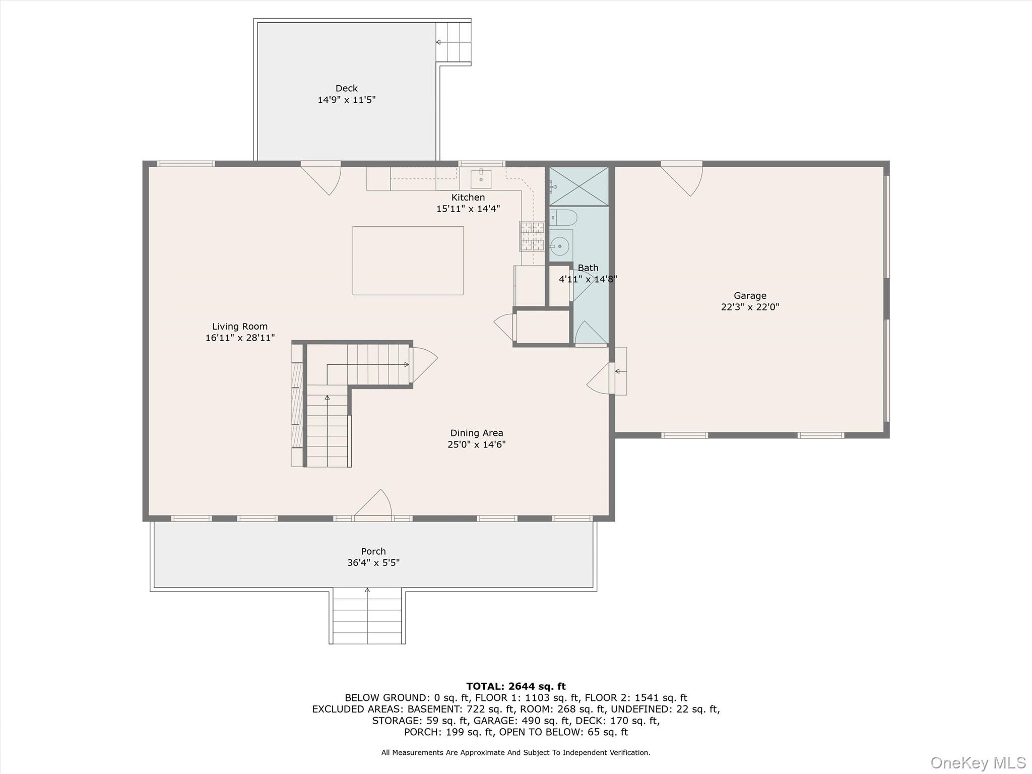
4beds
3bath
3,900sqft
3.1acres
House for Sale
225 Van Duzer Road, Middletown, NY 10940
Listing by: HomeSmart Homes & Estates
1 - 1 of 1 results

NYS Fair Housing NoticeNYS Reasonable Accommodation & Modification NoticePrivacy PolicyTerms of UseADADMCAReal Estate SitemapReal Estate Agent & Office Directory
400 Broadhollow Road, Suite 5, Farmingdale, NY 11735
Copyright © 2025 OneKey® MLS LLC
Display of MLS Data is usually deemed reliable but is NOT guaranteed accurate by the MLS. Buyers are responsible for verifying the accuracy of all information and should investigate the data themselves or retain appropriate professionals.






