
- Buy
- Rent
- Commercial
- Find an Agent
- NYS Fair Housing Notice
- Language
2 Sunset Drive, Head Of The Harbor, NY 11780









































































































NY/Suffolk County/Head Of The Harbor/11780/2 Sunset Drive, Head Of The Harbor, NY 117802 Sunset Drive, Head Of The Harbor, NY 11780
2 Sunset Drive, Head Of The Harbor, NY 11780
City/Town:Head Of The Harbor Post Office: Head Of The Harbor
House for Rent by Carol Hurnyak, Long Island Homes & Horse Prop.
- Overview
- Details
- Open Houses
- More
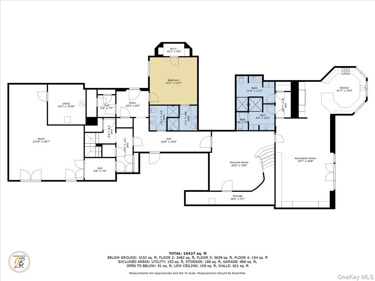
Welcome to 2 Sunset Lane – a stunning 6-bedroom, 10-bath estate set on 3.9 beautifully landscaped acres, complete with a private tennis court and herb garden. Main Floor - Step into a grand foyer featuring a sweeping staircase and chandelier. The main level offers a formal dining room, a spacious open kitchen with breakfast nook, large island, and top-of-the-line Wolf range with double ovens—perfect for hosting and entertaining. The formal living room showcases oversized windows that flood the space with natural light and a double-sided gas fireplace shared with the adjoining poker room. For additional leisure, a billiard room with a dramatic stone fireplace and balcony overlooks water views. This floor also includes a bedroom with ensuite bath, laundry room with sink, and a half bath. Second Floor - The primary suite is a true retreat, complete with a private balcony, his-and-hers walk-in closets, and a spa-like ensuite bath featuring a soaking tub, double sinks, radiant heated floors, and separate shower. An office space and spiral staircase lead to an observation tower with sweeping harbor views. Three additional bedrooms each offer ensuite baths, walk-in closets, and private balconies. This floor also includes a children’s playroom and a second laundry room for convenience. Lower Level - The fully finished basement is designed for entertainment and relaxation. The “Tennis Lounge” welcomes guests after a match, with dual locker-room style baths, a full kitchen, and a large lounge area with flat-screen TV. This level also features an additional bedroom with ensuite bath, a half bath, and a large storage room. Outdoor Living & Amenities - Enjoy ultimate privacy with 24-hour gated security and guard house. Whether unwinding on the balconies, hosting in the gardens, or playing tennis, this home offers both luxury and comfort in every detail. Don’t miss the opportunity to live in this private, resort-style residence—perfect for anyone seeking space, luxury, and the good life.