
1 home available
2 Louisiana Avenue # 3C, Bronxville, NY 10708
Down Payment Help
PendingPrice Reduced $55,000
$170,000
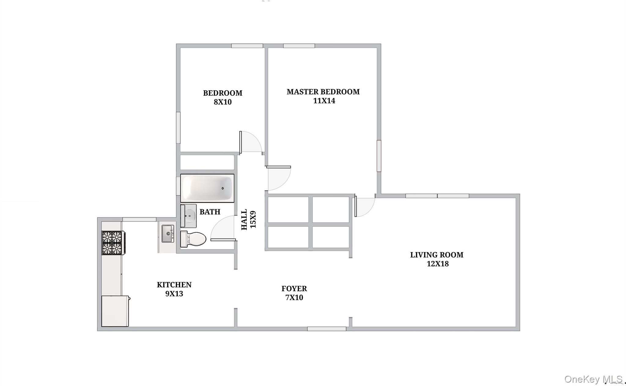
2beds
1bath
950sqft
–acres
Co-op for Sale
2 Louisiana Avenue # 3C, Bronxville, NY 10708
Listing by: Houlihan Lawrence Inc.
1 - 1 of 1 results

NYS Fair Housing NoticeNYS Reasonable Accommodation & Modification NoticePrivacy PolicyTerms of UseADADMCAReal Estate SitemapReal Estate Agent & Office Directory
400 Broadhollow Road, Suite 5, Farmingdale, NY 11735
Copyright © 2025 OneKey® MLS LLC
Display of MLS Data is usually deemed reliable but is NOT guaranteed accurate by the MLS. Buyers are responsible for verifying the accuracy of all information and should investigate the data themselves or retain appropriate professionals.






