
1 home available
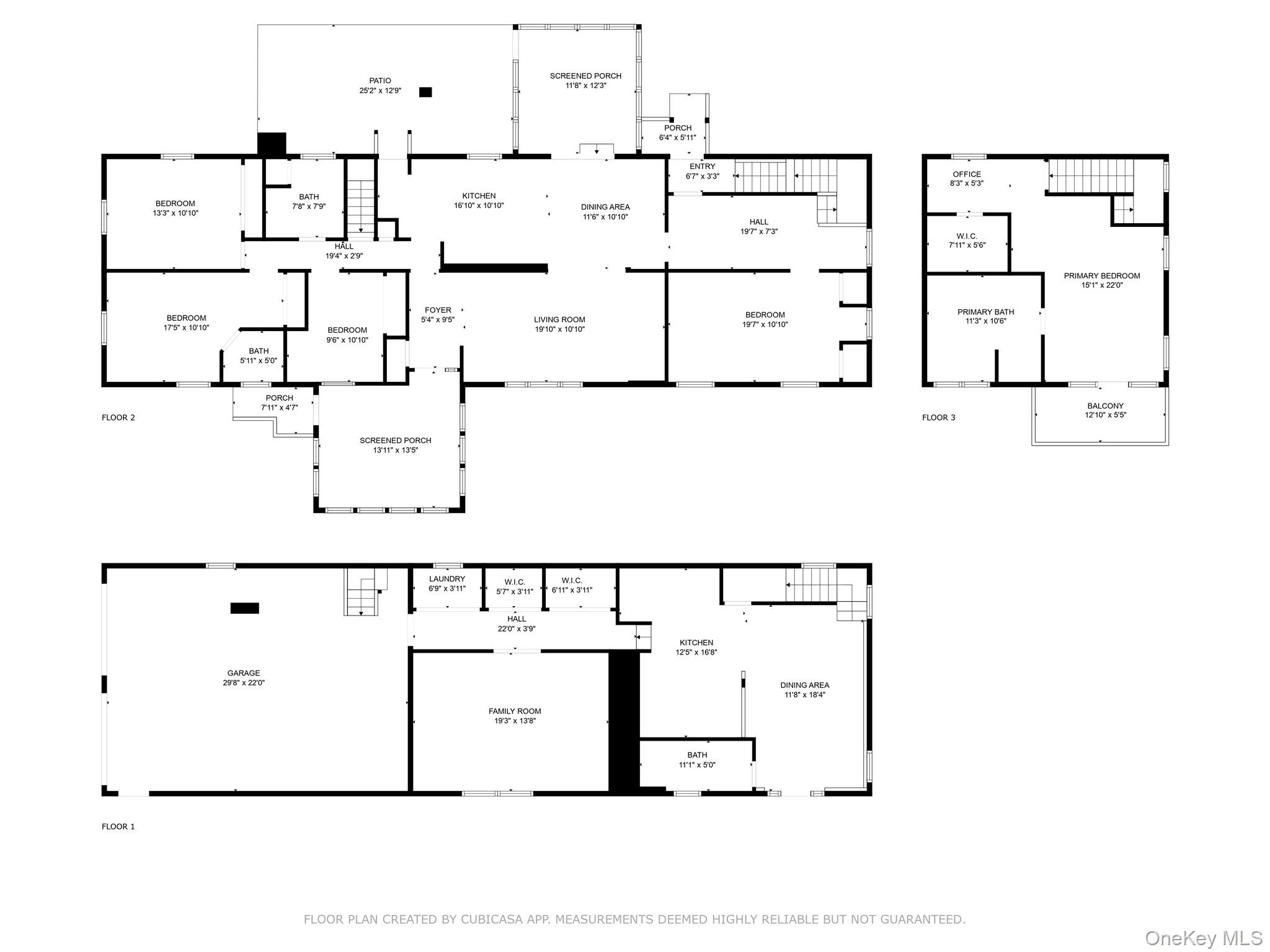
19 Pompeys Cave Road, High Falls, NY 12440
Down Payment Help
Virtual TourPrice Reduced $174,000
$575,000
5beds
4bath
3,270sqft
1.2acres
House for Sale
19 Pompeys Cave Road, High Falls, NY 12440
Listing by: BHHS Nutshell Realty
1 - 1 of 1 results

NYS Fair Housing NoticeNYS Reasonable Accommodation & Modification NoticePrivacy PolicyTerms of UseADADMCAReal Estate SitemapReal Estate Agent & Office Directory
400 Broadhollow Road, Suite 5, Farmingdale, NY 11735
Copyright © 2026 OneKey® MLS LLC
Display of MLS Data is usually deemed reliable but is NOT guaranteed accurate by the MLS. Buyers are responsible for verifying the accuracy of all information and should investigate the data themselves or retain appropriate professionals.






