
1 home available
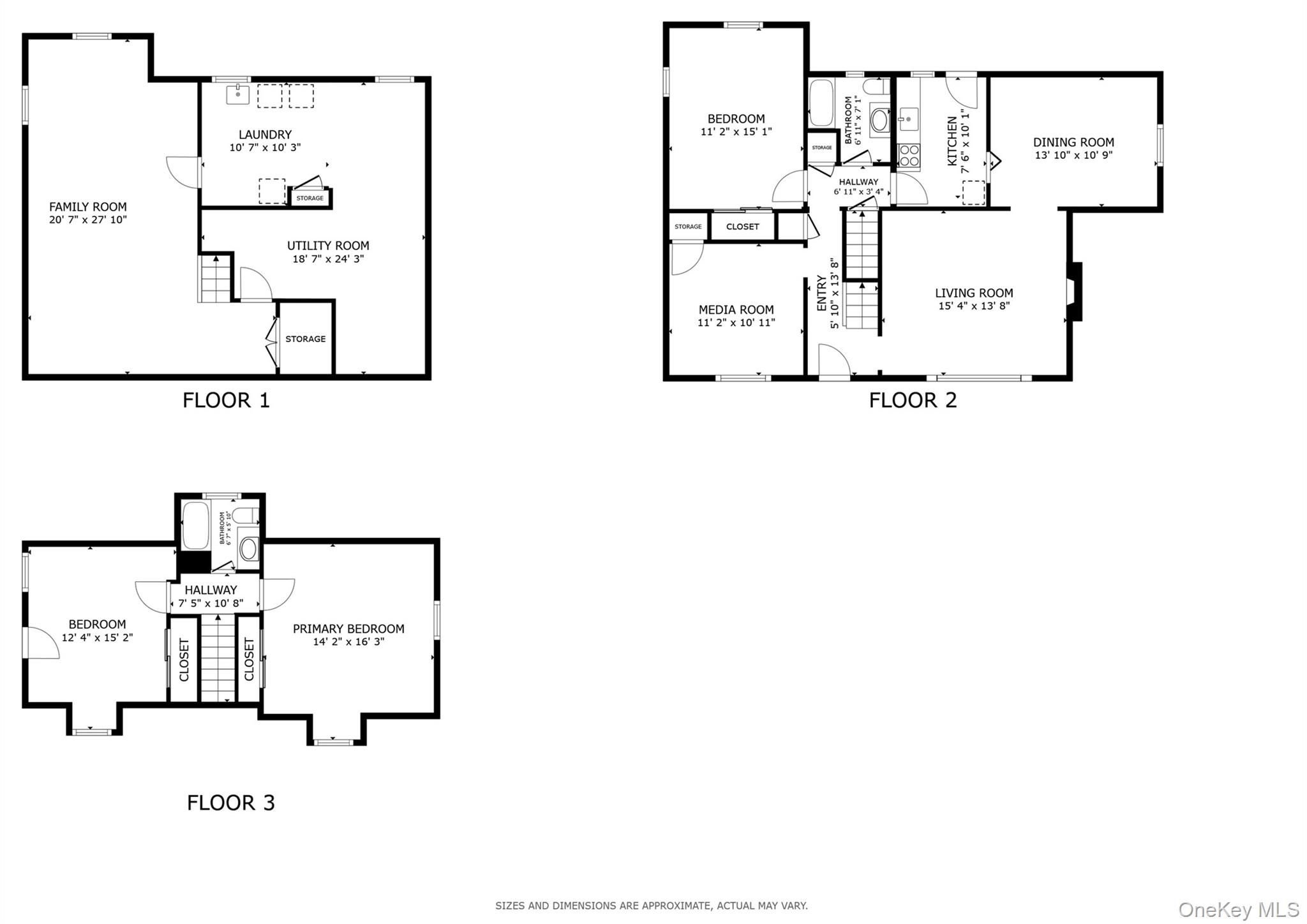
19 Dallas Avenue, New Hyde Park, NY 11040
Down Payment Help
PendingVirtual Tour
$849,999
4beds
2bath
1,464sqft
0.11acres
House for Sale
19 Dallas Avenue, New Hyde Park, NY 11040
Listing by: Redfin Real Estate
1 - 1 of 1 results

NYS Fair Housing NoticeNYS Reasonable Accommodation & Modification NoticePrivacy PolicyTerms of UseADADMCAReal Estate SitemapReal Estate Agent & Office Directory
400 Broadhollow Road, Suite 5, Farmingdale, NY 11735
Copyright © 2025 OneKey® MLS LLC
Display of MLS Data is usually deemed reliable but is NOT guaranteed accurate by the MLS. Buyers are responsible for verifying the accuracy of all information and should investigate the data themselves or retain appropriate professionals.






