
1 home available
171 Glen Avenue, Sea Cliff, NY 11579
PendingVirtual Tour
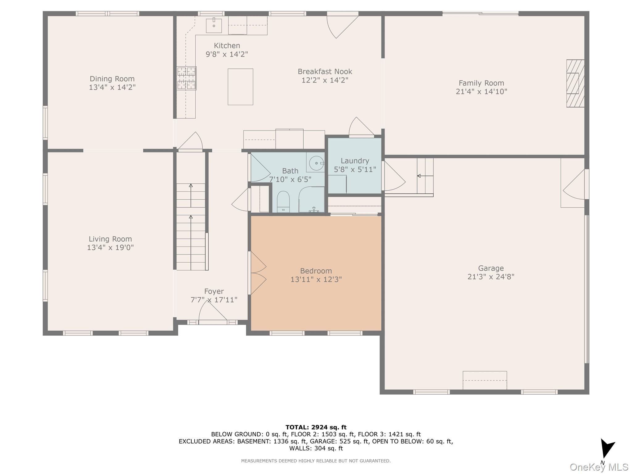
$1,475,000
5beds
3bath
3,496sqft
–acres
House for Sale
171 Glen Avenue, Sea Cliff, NY 11579
Listing by: LA Rosa Realty New York LLC
1 - 1 of 1 results

NYS Fair Housing NoticeNYS Reasonable Accommodation & Modification NoticePrivacy PolicyTerms of UseADADMCAReal Estate SitemapReal Estate Agent & Office Directory
400 Broadhollow Road, Suite 5, Farmingdale, NY 11735
Copyright © 2026 OneKey® MLS LLC
Display of MLS Data is usually deemed reliable but is NOT guaranteed accurate by the MLS. Buyers are responsible for verifying the accuracy of all information and should investigate the data themselves or retain appropriate professionals.






