
1 home available
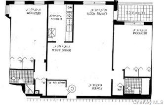
144-30 Sanford Avenue # 2C, Flushing, NY 11355
Down Payment Help
Open Sun 11:00 AM-3:00 PMPrice Reduced $11,000
$538,000
2beds
2bath
1,260sqft
–acres
Co-op for Sale
144-30 Sanford Avenue # 2C, Flushing, NY 11355
Listing by: Chous Realty Group Inc
1 - 1 of 1 results

NYS Fair Housing NoticeNYS Reasonable Accommodation & Modification NoticePrivacy PolicyTerms of UseADADMCAReal Estate SitemapReal Estate Agent & Office Directory
400 Broadhollow Road, Suite 5, Farmingdale, NY 11735
Copyright © 2025 OneKey® MLS LLC
Display of MLS Data is usually deemed reliable but is NOT guaranteed accurate by the MLS. Buyers are responsible for verifying the accuracy of all information and should investigate the data themselves or retain appropriate professionals.






