
1 home available
143 Hallock Street, Riverhead, NY 11901
Down Payment Help
Open Sun 2:00 PM-3:30 PMVirtual Tour
$710,000
3beds
2.5bath
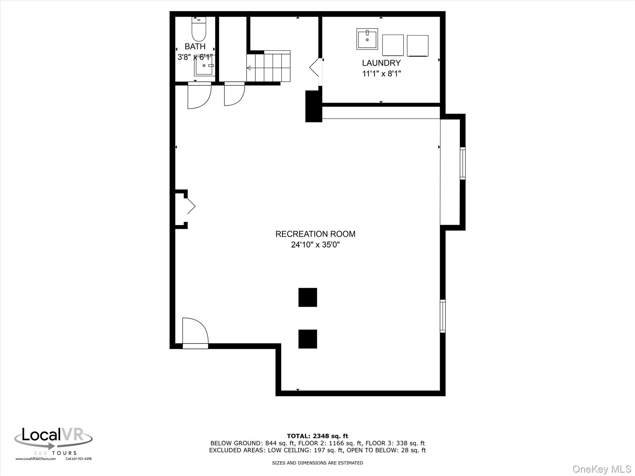
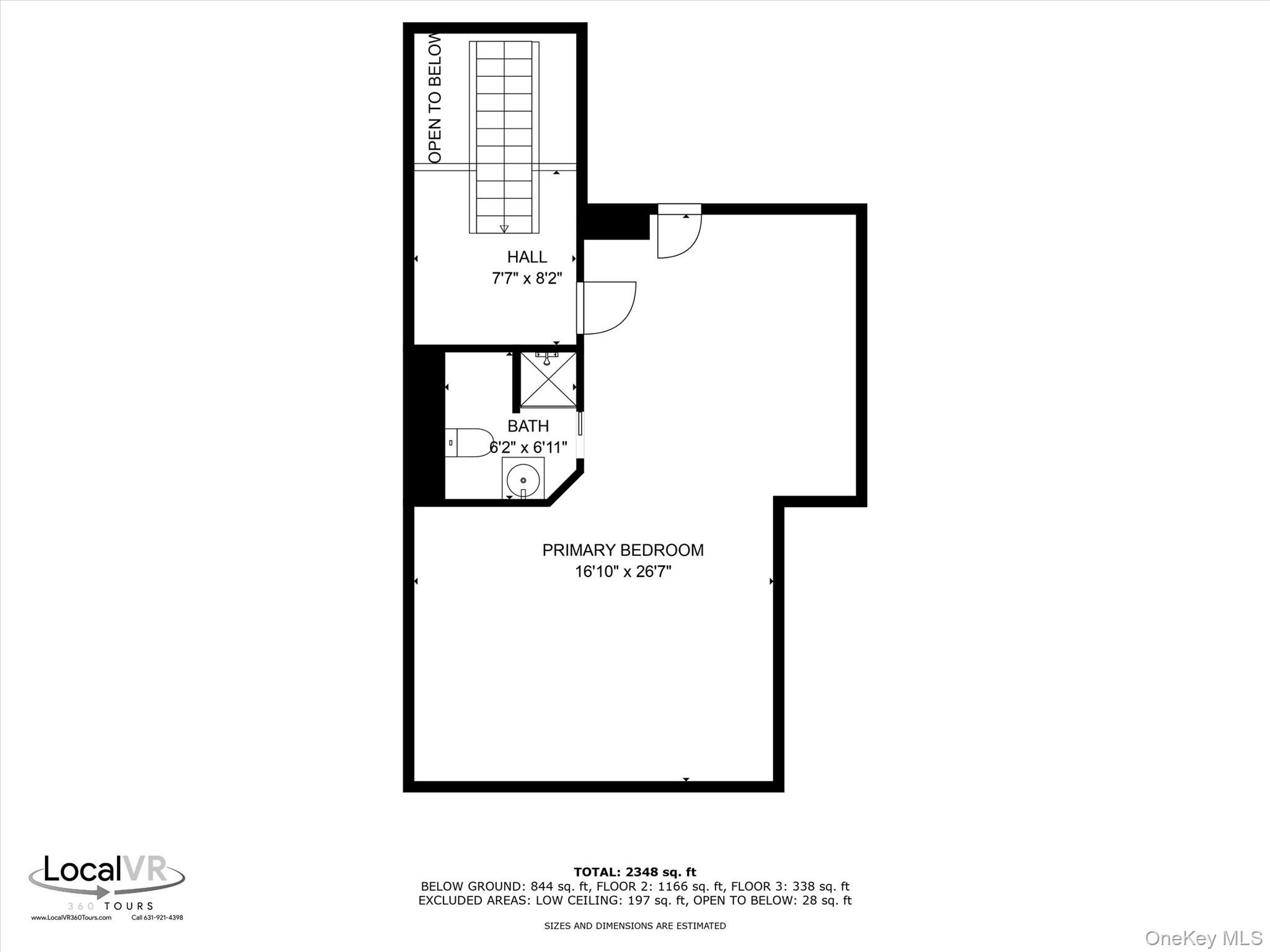
1,800sqft
0.31acres
House for Sale
143 Hallock Street, Riverhead, NY 11901
Listing by: Douglas Elliman Real Estate
1 - 1 of 1 results

NYS Fair Housing NoticeNYS Reasonable Accommodation & Modification NoticePrivacy PolicyTerms of UseADADMCAReal Estate SitemapReal Estate Agent & Office Directory
400 Broadhollow Road, Suite 5, Farmingdale, NY 11735
Copyright © 2025 OneKey® MLS LLC
Display of MLS Data is usually deemed reliable but is NOT guaranteed accurate by the MLS. Buyers are responsible for verifying the accuracy of all information and should investigate the data themselves or retain appropriate professionals.






