
- Buy
- Rent
- Commercial
- Find an Agent
- NYS Fair Housing Notice
- Language

130 De Graw Street, Brooklyn, NY 11231










NY/Kings (Brooklyn)/Brooklyn/11231/130 De Graw Street, Brooklyn, NY 11231130 De Graw Street, Brooklyn, NY 11231
130 De Graw Street, Brooklyn, NY 11231
City/Town:Brooklyn Post Office: Brooklyn
Residential Income by Peter J. Poljan, Poljan Properties Inc..
- Overview
- Details
- Open Houses
- More
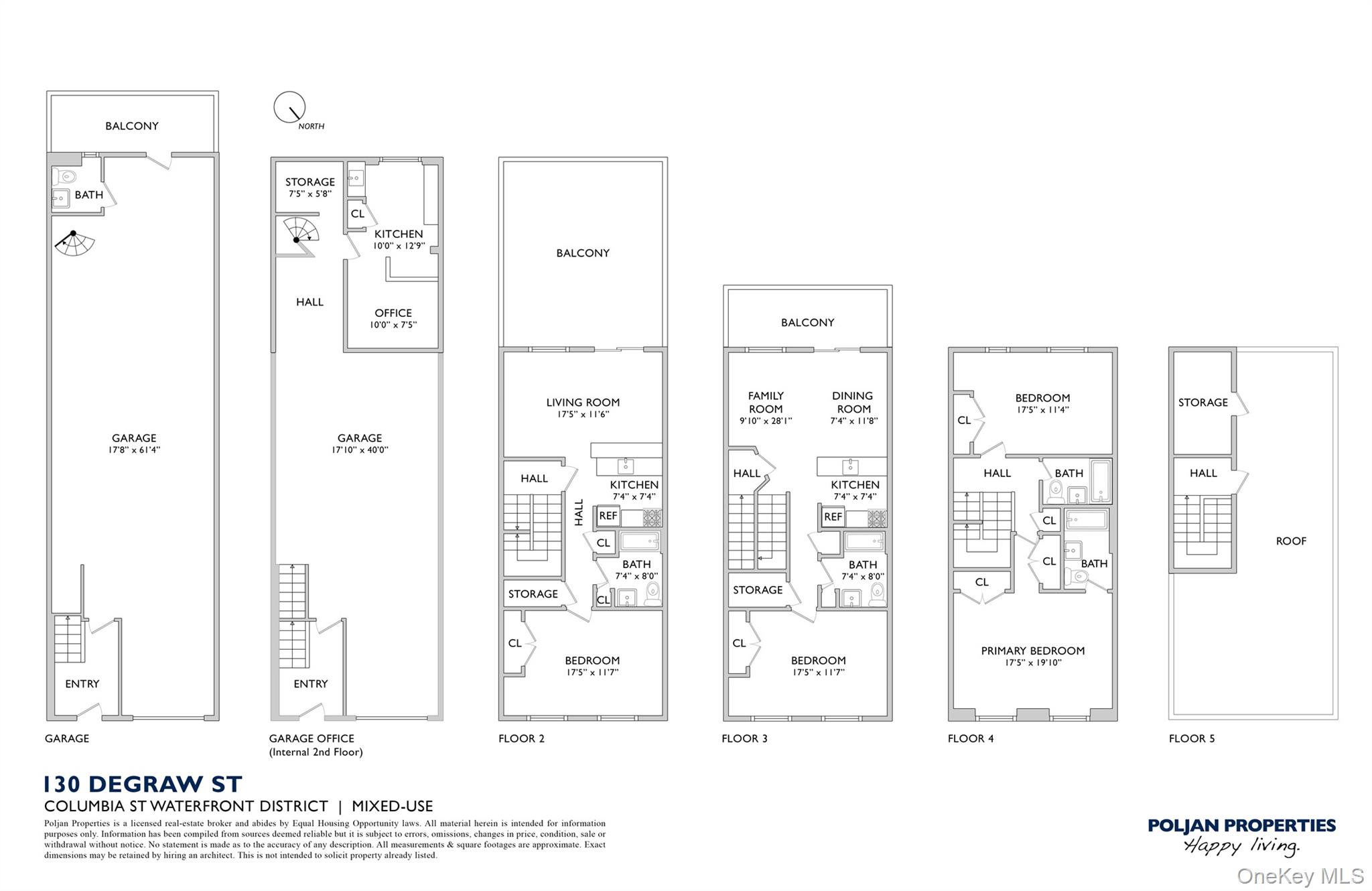
Discover a rare opportunity in one of Brooklyn’s most sought-after enclaves — a modern mixed-use property built in 2006 that combines flexible commercial space, spacious residential units with outdoor amenities, and compelling investment or conversion potential. This four-story, 3,749 SF building sits on a 20 × 79 ft lot and offers two expansive residential apartments above a versatile ~1,000 SF commercial level. With R6B/R6A zoning and a C2-4 overlay, the ground floor supports a wide range of commercial uses — from restaurant, retail, and creative studios to professional or wellness services. The space is highlighted by soaring double-height ceilings, a dedicated office, private bathroom, and direct access to a rear outdoor yard. An oversized garage component accommodates up to four vehicles with an auto lift, adding further value for owners or tenants. This combination of features makes the property equally attractive to end-users, entrepreneurs, and investors. Unit 1: A bright, south-facing one-bedroom with an open living/kitchen layout and direct access to a large private terrace. Unit 2: A spacious three-bedroom, two-bathroom duplex with hardwood floors, generous proportions, and a private roof deck featuring sweeping views of the Manhattan skyline. Both apartments are separately metered, and tenants pay their own electric and heating, keeping ownership expenses minimal. The property is currently income-producing with one unit on a month-to-month basis and another leased through January 2026. With tenants responsible for utilities, modest common expenses, and property taxes reduced under a 25-year ICIP abatement (6 years capped), operating costs remain low. Beyond stable rental income, the building’s layout and modern construction make it a prime candidate for condo conversion — allowing a buyer to create three highly marketable units (two residential + one commercial) in a neighborhood where new condo inventory is limited. Located in the heart of the Columbia Street Waterfront District, 130 Degraw sits just moments away from acclaimed neighborhood institutions such as Alma and Poppy’s, as well as an array of independent cafés, restaurants, and shops. Brooklyn Bridge Park, Cobble Hill, and Carroll Gardens are all within easy reach, while the waterfront greenway provides a scenic link to Brooklyn Heights and Red Hook. This vibrant community combines charm, convenience, and connectivity, making it one of Brooklyn’s most desirable places to live and invest. With flexible zoning, a full-floor commercial space, modern construction, outdoor amenities, and multiple paths for value creation — whether as an income-producing asset, live/work residence, or condo conversion — 130 Degraw Street is a rare find in Columbia Street Waterfront. Contact the listing agent to schedule a tour.