
1 home available
1260 Water Terrace, Southold, NY 11971
Virtual TourPrice Reduced $220,000
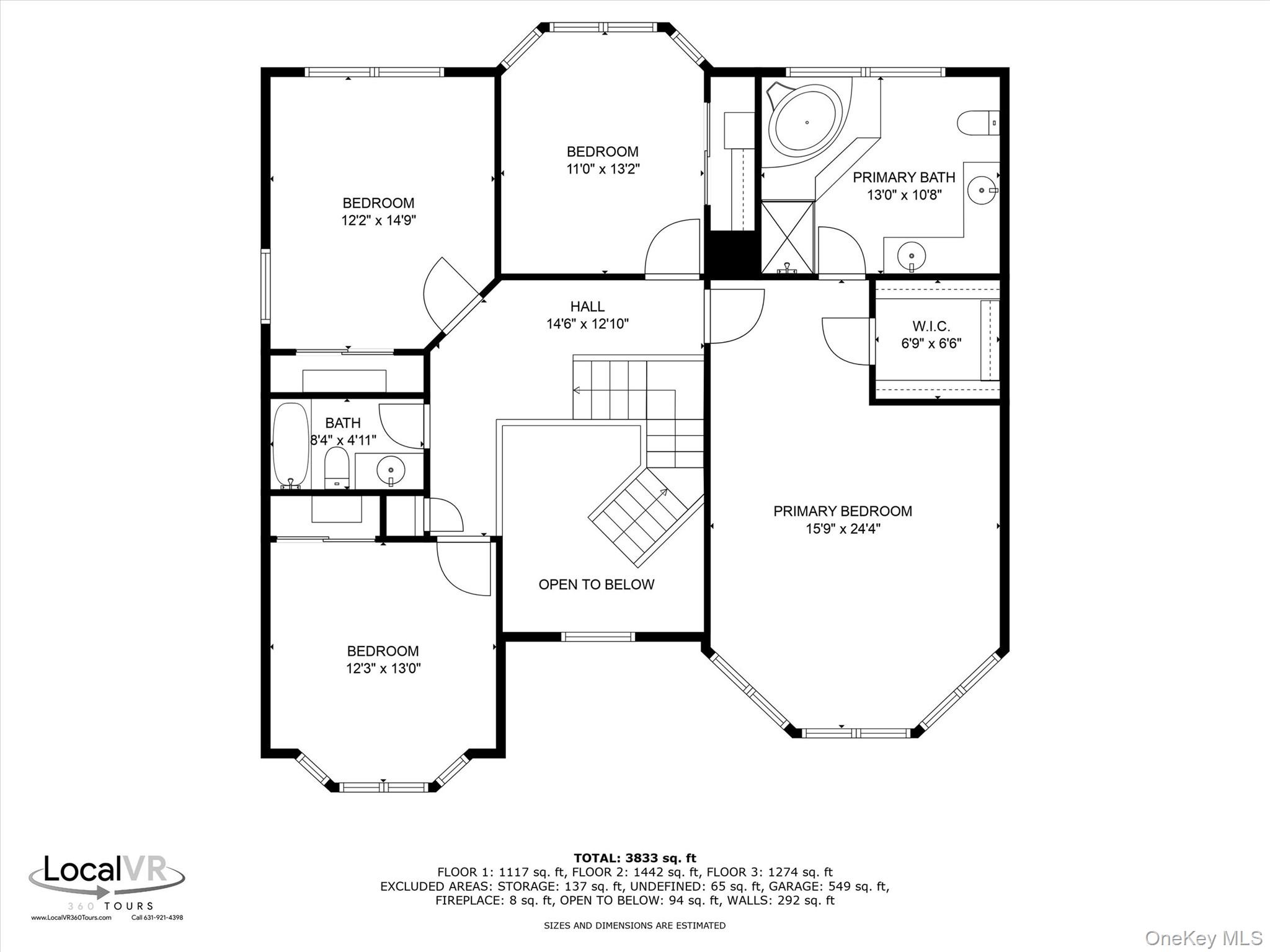
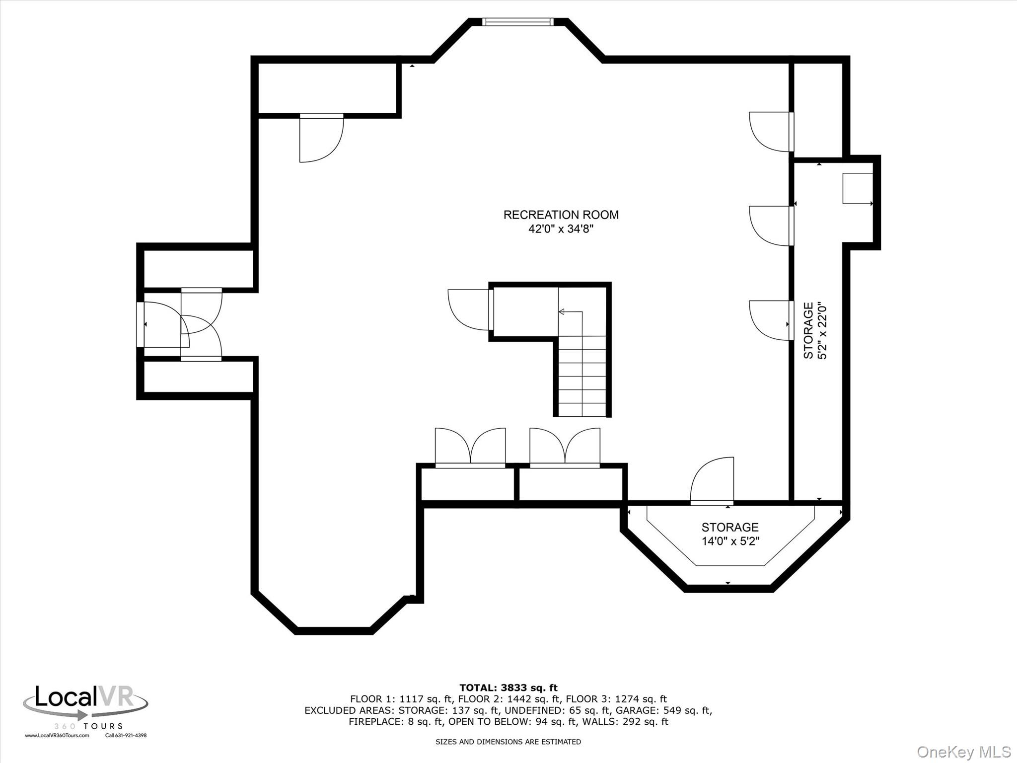
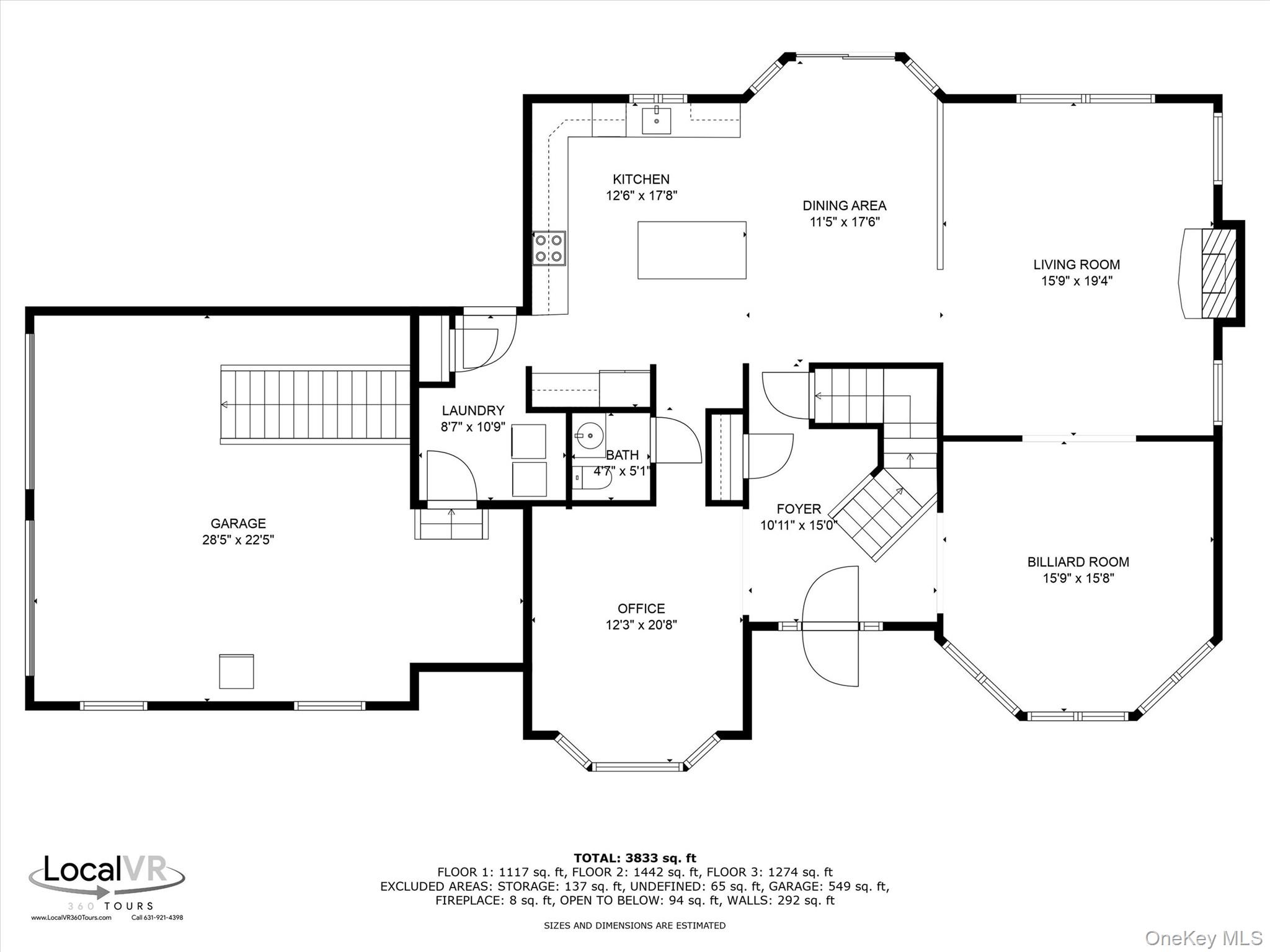
$1,675,000
4beds
2.5bath
3,110sqft
0.83acres
House for Sale
1260 Water Terrace, Southold, NY 11971
Listing by: Daniel Gale Sothebys Intl Rlty
1 - 1 of 1 results

NYS Fair Housing NoticeNYS Reasonable Accommodation & Modification NoticePrivacy PolicyTerms of UseADADMCAReal Estate SitemapReal Estate Agent & Office Directory
400 Broadhollow Road, Suite 5, Farmingdale, NY 11735
Copyright © 2026 OneKey® MLS LLC
Display of MLS Data is usually deemed reliable but is NOT guaranteed accurate by the MLS. Buyers are responsible for verifying the accuracy of all information and should investigate the data themselves or retain appropriate professionals.






