
- Buy
- Rent
- Commercial
- Find an Agent
- NYS Fair Housing Notice
- Language

114 Ranch Hill Road, South Fallsburg, NY 12779










NY/Sullivan County/South Fallsburg/12779/114 Ranch Hill Road, South Fallsburg, NY 12779114 Ranch Hill Road, South Fallsburg, NY 12779
114 Ranch Hill Road, South Fallsburg, NY 12779
City/Town:South Fallsburg Post Office: South Fallsburg
House for Sale by Alan R. Wieder, Catskills Home Services.
- Overview
- Details
- Open Houses
- More
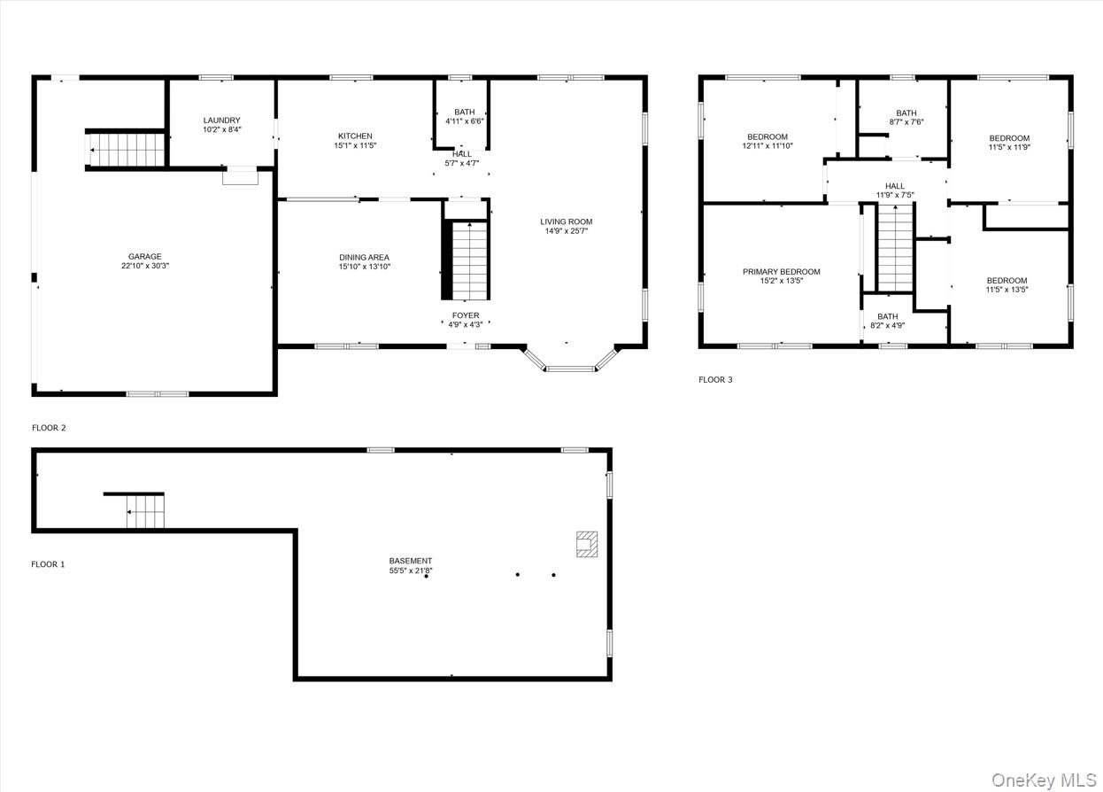
Price Reduced on this South Fallsburg Retreat- Introducing 114 Ranch Hill Road, a turn-key colonial situated on 11.78 acres, being sold with an additional 2.13-acre buildable lot. The house features 2,160sf spread over two levels plus an un-finished basement, a two-car garage, and a shed. There are four spacious bedrooms, two and a half bathrooms, and a laundry room. The bonus lot is zoned Residential 1 and is a separate parcel, so it can be built on or sold off right away. There aren’t many houses for sale in South Fallsburg, come find your next home today! The house sits on a beautifully landscaped and mostly level clearing, about an acre in size. The rest of the property is wooded and private, with ATV trails and acres to explore, hunt, and play. Massive front and back yards provide ample space for outdoor recreation. Play ball or have a BBQ with enough space for all your friends and family. Love to garden? The property has a wide array of stunning flora, as well as peach, pear, apple, and chestnut trees. In front there is a massive U-shaped driveway and a parking lot leading into the oversized two-car garage. Sit on the partially covered front porch and enjoy the view and fresh mountain air. In the back there is a shed that can fit ATV’s lawn mowers, etc. If you love the outdoors, this is the one for you! The house has been very well maintained by its current owners and is in move-in condition. Recent upgrades include a new roof (2023), new 400’ well (2025), and a new storage shed with a front porch (2019). The house has an Ultraviolet water filtration system, Navien hot water on-demand, and propane fired baseboard heat. On the inside, the main floor features a huge living room, a kitchen with ample cabinet space, and a breakfast bar that opens into the dining room. The over-sized laundry room doubles as a Costco room/pantry, and there is also a half bathroom. The upper level offers four spacious bedrooms with good closet space. The primary bedroom has an en-suite bathroom with a shower and the hallway bathroom has a bathtub. The basement currently offers a wood-burning fireplace and excellent storage space, but it is a blank canvas waiting to be finished. You can add guest rooms, a playroom, or even tap into the existing rough plumbing to add another bathroom. The house is located on a quiet stretch of Ranch Hill Road in the desirable hamlet of South Fallsburg. Major Sullivan County attractions including The Kartrite Indoor Water Park, Resorts World Catskills, and Monster Golf Course are less than ten minutes away. Monticello’s major shopping hub is just ten minutes away, with a Walmart, Shoprite, Home Depot, Old Navy, and Marshalls, just to name a few. Starbucks and Five Below are currently under construction and there is a plethora of local and chain restaurants there as well. Sunshine Estates and J.F.H. Bungalows are both located a half mile away, and Charm Estates is 0.8 miles away.