
1 home available
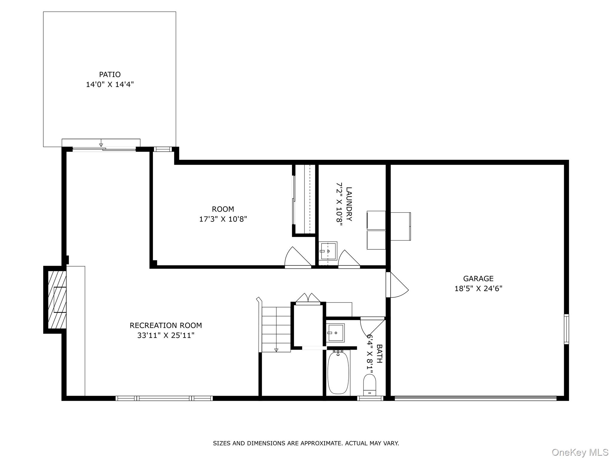
114 Oxford Road, New Rochelle, NY 10804
Down Payment Help
PendingPrice Reduced $75,001

$1,149,999
4beds
3bath
2,560sqft
0.25acres
House for Sale
114 Oxford Road, New Rochelle, NY 10804
Listing by: Julia B Fee Sothebys Int. Rlty
1 - 1 of 1 results

NYS Fair Housing NoticeNYS Reasonable Accommodation & Modification NoticePrivacy PolicyTerms of UseADADMCAReal Estate SitemapReal Estate Agent & Office Directory
400 Broadhollow Road, Suite 5, Farmingdale, NY 11735
Copyright © 2026 OneKey® MLS LLC
Display of MLS Data is usually deemed reliable but is NOT guaranteed accurate by the MLS. Buyers are responsible for verifying the accuracy of all information and should investigate the data themselves or retain appropriate professionals.
































