
1 home available
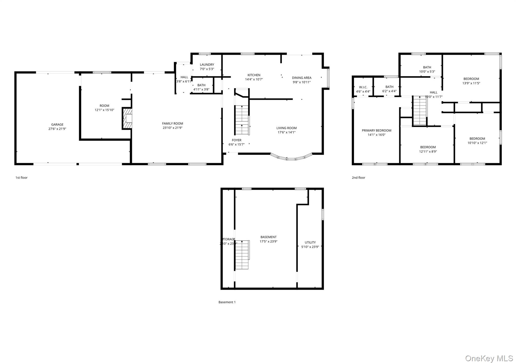
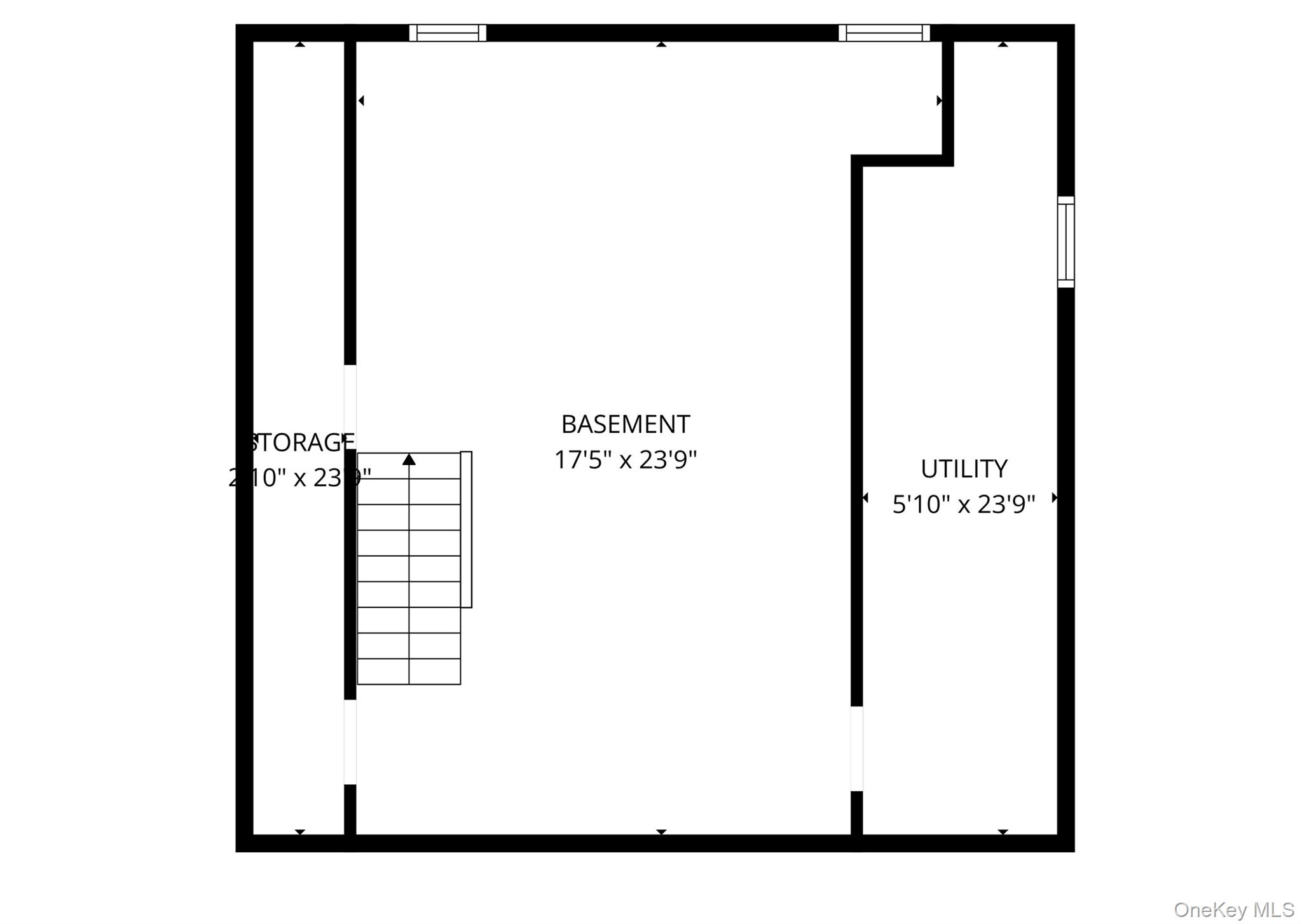
11 Val Court, Holbrook, NY 11741
Down Payment Help
$749,900
4beds
2.5bath
2,327sqft
0.46acres
House for Sale
11 Val Court, Holbrook, NY 11741
Listing by: ARVY Realty
1 - 1 of 1 results

NYS Fair Housing NoticeNYS Reasonable Accommodation & Modification NoticePrivacy PolicyTerms of UseADADMCAReal Estate SitemapReal Estate Agent & Office Directory
400 Broadhollow Road, Suite 5, Farmingdale, NY 11735
Copyright © 2026 OneKey® MLS LLC
Display of MLS Data is usually deemed reliable but is NOT guaranteed accurate by the MLS. Buyers are responsible for verifying the accuracy of all information and should investigate the data themselves or retain appropriate professionals.






