
1 home available
10 Kirkwood Street, Long Beach, NY 11561
Down Payment Help
Pending
$625,000
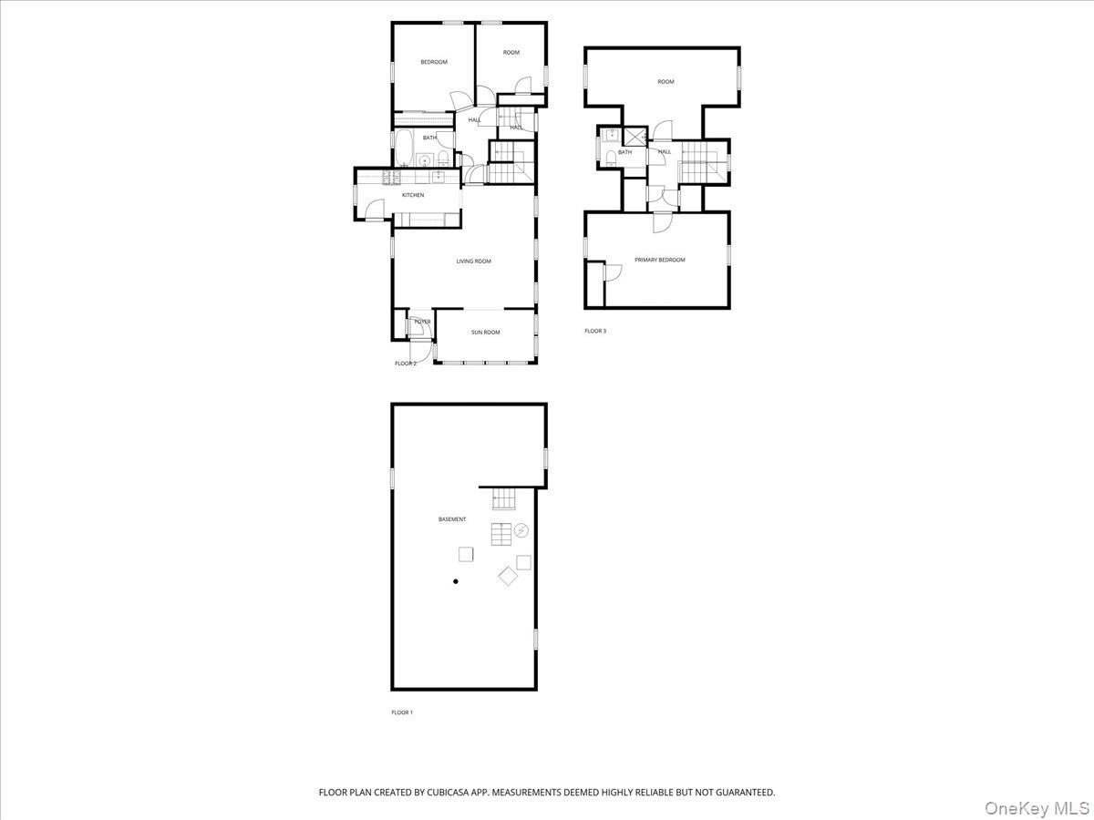
3beds
2bath
1,355sqft
0.05acres
House for Sale
10 Kirkwood Street, Long Beach, NY 11561
Listing by: RE/MAX Reliance
1 - 1 of 1 results

NYS Fair Housing NoticeNYS Reasonable Accommodation & Modification NoticePrivacy PolicyTerms of UseADADMCAReal Estate SitemapReal Estate Agent & Office Directory
400 Broadhollow Road, Suite 5, Farmingdale, NY 11735
Copyright © 2026 OneKey® MLS LLC
Display of MLS Data is usually deemed reliable but is NOT guaranteed accurate by the MLS. Buyers are responsible for verifying the accuracy of all information and should investigate the data themselves or retain appropriate professionals.






