
- Buy
- Rent
- Commercial
- Find an Agent
- NYS Fair Housing Notice
- Language

1 Park Lane # 4A, Mount Vernon, NY 10552










NY/Westchester County/Mount Vernon/10552/1 Park Lane # 4A, Mount Vernon, NY 105521 Park Lane # 4A, Mount Vernon, NY 10552
1 Park Lane # 4A, Mount Vernon, NY 10552
City/Town:Mount Vernon Post Office: Mount Vernon
Co-op for Sale by Susan D. Hawkins, Julia B Fee Sothebys Int. Rlty.
- Overview
- Details
- Open Houses
- More
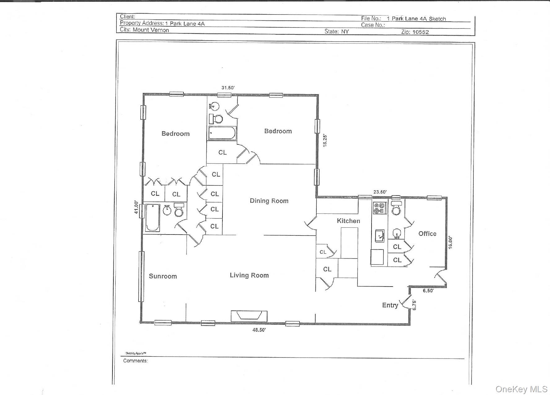
Rare 3 bedroom, 2 1/2 bath apartment available at the historic - and dog-friendly! - Park Lane cooperative community in the Chester Hill Park neighborhood of Mount Vernon. Designed by renowned architectural firm McKim, Mead & White in the late 1920s, Park Lane is a 4-building complex built on the 5-acre former estate of James Bailey of Barnum & Bailey fame. This 1800 square foot apartment has the largest floor plan in the complex and exudes prewar charm throughout, featuring original hardwood floors, high ceilings, and crown molding. With its generous layout and ample square footage, this apartment offers the comfort and space of a house. A gracious entry foyer welcomes you, and opens into the oversized living room that is flooded with natural light streaming in through the large windows. A wood-burning fireplace adds a warm and cozy touch to the room, creating a perfect, inviting atmosphere. Just off the living room is a lovely sunroom with walls of windows on two sides and custom built-in cabinetry on the remaining side. The elegant formal dining room easily accommodates a large dining table and is perfect for sharing intimate meals or hosting larger dinner parties. The updated, eat-in kitchen is a chef’s dream, sporting high-end stainless steel appliances, Carrara marble counters and backsplash, and classic white, Shaker-style cabinets. The focal point of the kitchen is the peninsula that provides extra prep space and has counter-height seating that is perfect for casual dining. Rounding out this exquisite home are 3 ample-sized bedrooms, each with an en-suite marble bath. The oversized primary suite features a recently renovated full bath and has 6 closets in total, including a wall of custom closets in the corridor opposite the bath. The second bedroom enjoys a renovated full bath and a walk-in closet. The third bedroom, off the kitchen, sports a custom built-in desk and bookcases, and has an updated half bath. No detail has been overlooked in this Park Avenue style apartment: from the made-to-order window treatments and custom millwork radiator covers to luxe finishes and stylish light fixtures. Laundry and storage are available onsite, and both garage and outdoor parking options are available. Other amenities include video security, Building Link, and refreshed common areas, elevators, and laundry room. The complex retains old-world charm with wrought iron fencing, cobblestone drives, and lovely gardens. Park Lane is conveniently located near most major highways, is about a mile from Bronxville and Pelham, and is a 15 minute walk or 7 minute drive to the Mt. Vernon East Metro North station, where the train will whisk you away to all that Manhattan has to offer in a mere 30 minutes. Don’t miss this unparalleled opportunity.